Office vul. Degtjarivs'ka 27Т, 700m2

  • Shevchenkivskyi District vul. Degtjarivs'ka 27Т
  • Code: RC-222-829
  • Added by: 22.03.2026
  • Add to favorites
Market type
Secondary market
Street
vul. Degtjarivs'ka 27Т
Purpose
Office Premise
Floor
4 Floor
Number of storeys
11 storey house
Total area
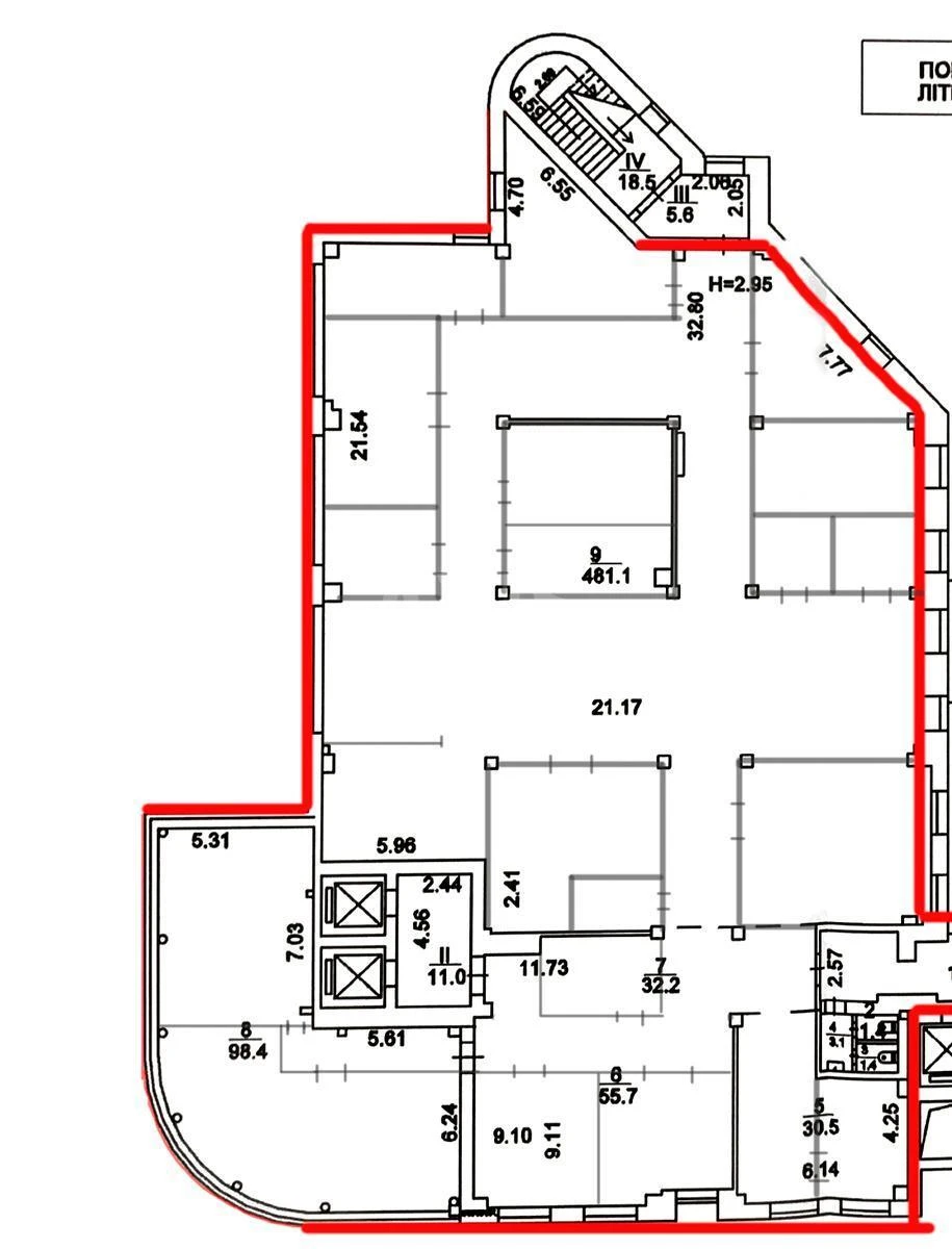
700 м2
General state
With repair
Price:
329 201 UAH
7 500 USD
Description of the object

Office space. The lights are always on, available 24/7. The premises feature a private kitchen, toilets, and an office layout comprising two open-plan areas. 4th floor – 700 sq m of usable space. Tenants at the Mikom Palace Business Centre include leading Ukrainian and international companies from the pharmaceutical, financial, investment and other sectors. The business centre is distinguished by its prime location, an impressive entrance area with two entrances to the building, and a large car park. The nearest metro stations – Luk’yanivska, Dorogozhychi and Shulyavska – are within walking distance of the business centre.

Similar offers