Офис ул. Дегтяревская 27Т, 700м2

  • Шевченковский район ул. Дегтяревская 27Т
  • Код: RC-222-829
  • Добавлено: 22.03.2026
  • Добавить в избранное
Тип рынка
Вторичный рынок
Улица
ул. Дегтяревская 27Т
Призначення
Офисное помещение
Этаж
4 Этаж
Этажность
11 этажный дом
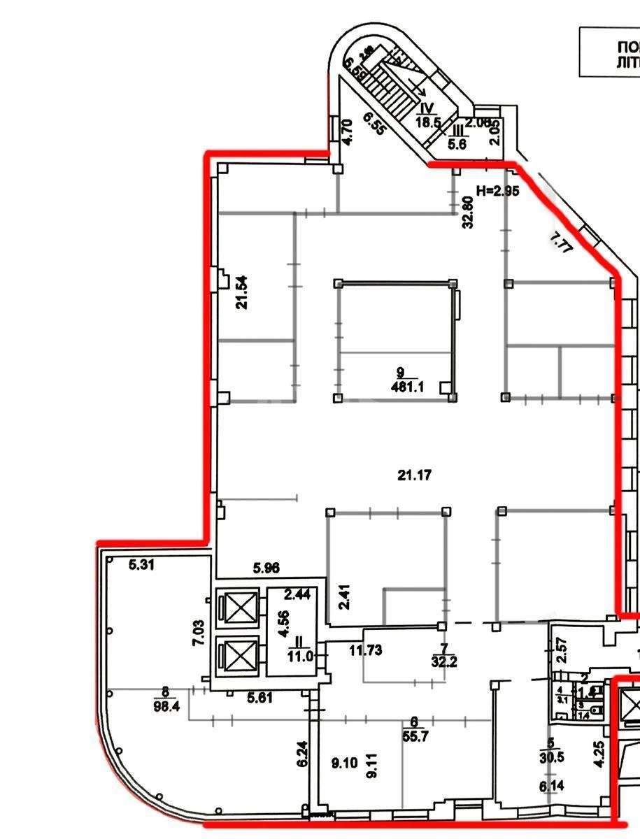
Общая площадь
700 м2
Общее состояние
С ремонтом
Цена:
329 201 грн.
7 500 USD
Описание объекта

Офисное помещение. Освещение не отключается, работает круглосуточно. В помещении собственная кухня, санузлы, кабинетная система объединена с 2-мя open space. 4 этаж — 700 кв.м. полезной площади. В числе арендаторов БЦ Mikom Palace ведущие украинские и международные компании фармацевтической, финансовой, инвестиционной и других отраслей деятельности. Бизнес-центр отличается фасадным расположением, презентабельной входной группой с двумя входами в здание, наличием большого паркинга. Ближайшие ст.м. Лукьяновская, Дорогожичи и ст.м. Шулявская расположены в пешей доступности от бизнес-центра.

Похожие предложения