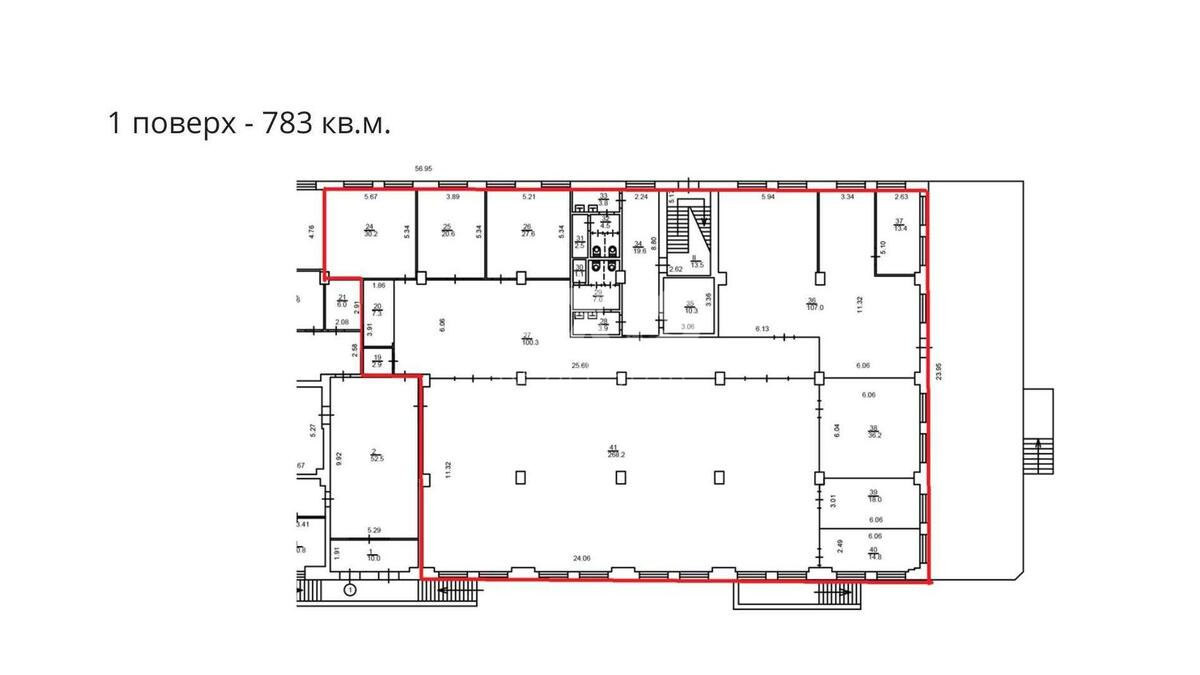
Офіс вул. Бульварно-Кудрявська 22/24, 783м2

  • Шевченківський район вул. Бульварно-Кудрявська 22/24
  • Код: RC-210-029
  • Добавлено: 21.05.2025
  • Додати в обране
Тип ринку
Вторинний ринок
Вулиця
вул. Бульварно-Кудрявська 22/24
Назначение
Офісне приміщення
Поверх
4 Поверх
Поверховість
4 поверховий будинок
Загальна площа
783 м2
Загальний стан
З ремонтом
Ціна:
561 408 грн.
13 321 USD
  • AXIS Real Estate
  • AXIS Real Estate
  • AXIS Real Estate
Опис об'єкту

Офісне приміщення. Вакантні офіси від 240 м² до 950 м². З ремонтом, змішане планування. Висота стелі — 4,5 м. Технічне оснащення: автономне опалення. HVAC-система: припливно-витяжна вентиляція та кондиціювання. Електропостачання: 2 × 630 кВт + UPS. Генератор резервного живлення. Фальшпідлога. Інтернет (оптика): Волз, Датагруп, Фарлеп, Київстар. Можливість підключення міні-АТС.

Додаткова інформація

Схожі пропозиції