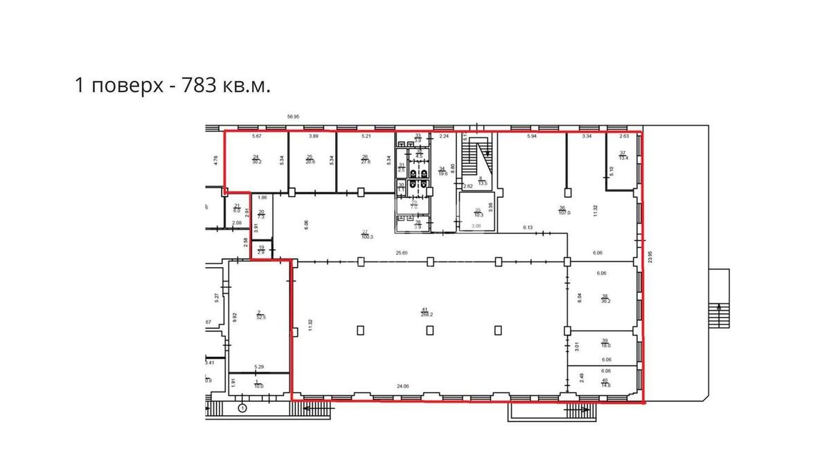
Office vul. Bul'varno-Kudrjavs'ka 22/24, 783m2

  • Shevchenkivskyi District vul. Bul'varno-Kudrjavs'ka 22/24
  • Code: RC-210-029
  • Added by: 21.05.2025
  • Add to favorites
Market type
Secondary market
Street
vul. Bul'varno-Kudrjavs'ka 22/24
Purpose
Office Premise
Floor
4 Floor
Number of storeys
4 storey house
Total area
783 м2
General state
With repair
Price:
561 408 UAH
13 321 USD
  • AXIS Real Estate
  • AXIS Real Estate
  • AXIS Real Estate
Description of the object

Office space. Vacant offices from 240 m² to 950 m². Renovated, mixed layout. Ceiling height: 4.5 m. Technical equipment: autonomous heating. HVAC system: supply and exhaust ventilation and air conditioning. Power supply: 2 × 630 kW + UPS. Backup power generator. Raised floor. Internet (optics): Volz, Datagroup, Farlep, Kyivstar. Possibility to connect a mini-PBX.

Additional Information

Similar offers