Офіс вул. Михайлівська 7, 465м2

  • Шевченківський район вул. Михайлівська 7
  • Код: RC-217-744
  • Добавлено: 11.11.2025
  • Додати в обране
Тип ринку
Вторинний ринок
Вулиця
вул. Михайлівська 7
Назначение
Офісне приміщення
Поверх
2 Поверх
Поверховість
5 поверховий будинок
Загальна площа
465 м2
Загальний стан
З ремонтом
Ціна:
526 562 грн.
12 555 USD
  • AXIS Real Estate
  • AXIS Real Estate
  • AXIS Real Estate
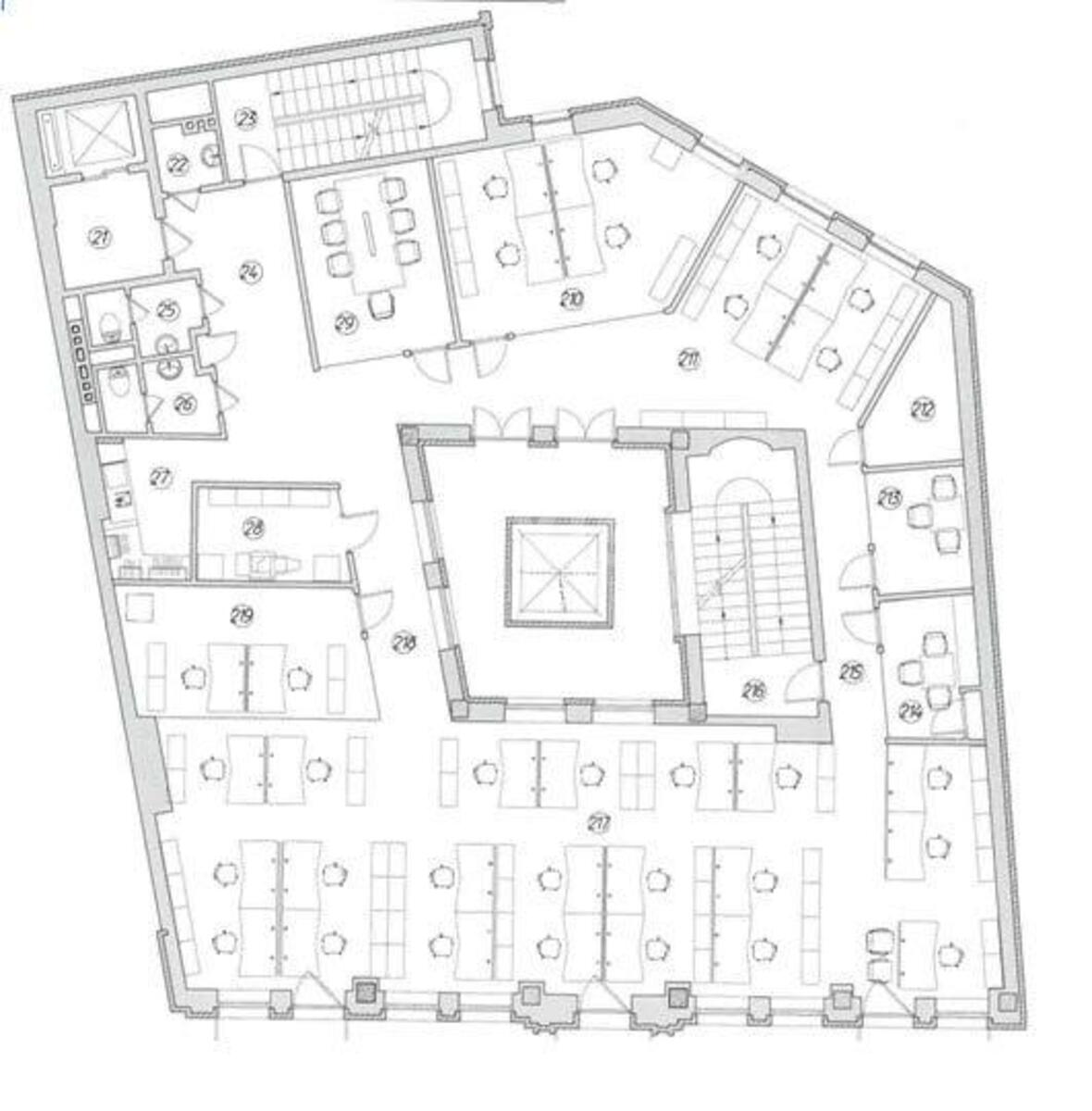
Опис об'єкту

Офісне приміщення. Меблі: 34 робочих місця, вже Щ меблями. Формат: open space + кабінети. Ремонт: сучасний. Вентиляція, дизель-генератор. 2 санвузли, кухня, 3 балкони. Пропускна система, охорона 24/7, відеонагляд. Паркінг (ліфт у підземку), закритий двір.

Додаткова інформація

Схожі пропозиції