Продаж

Усі фото (8)
Офіс вул. Березняківська 29, 37м2
- Додати в обране
-
Подiлитись посиланням
Тип ринку
Вторинний ринок
Вулиця
вул. Березняківська 29
Назначение
Офісне приміщення
Поверх
2 Поверх
Поверховість
26 поверховий будинок
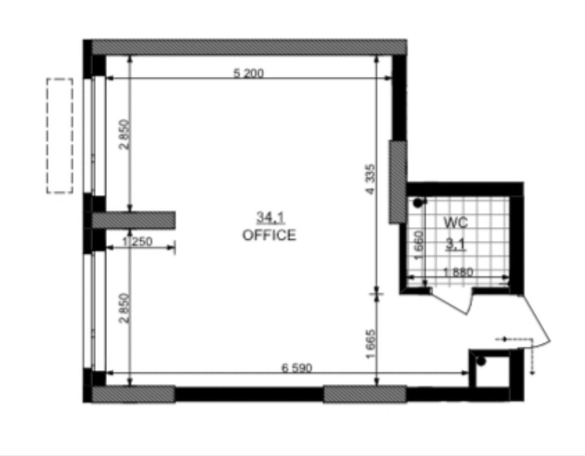
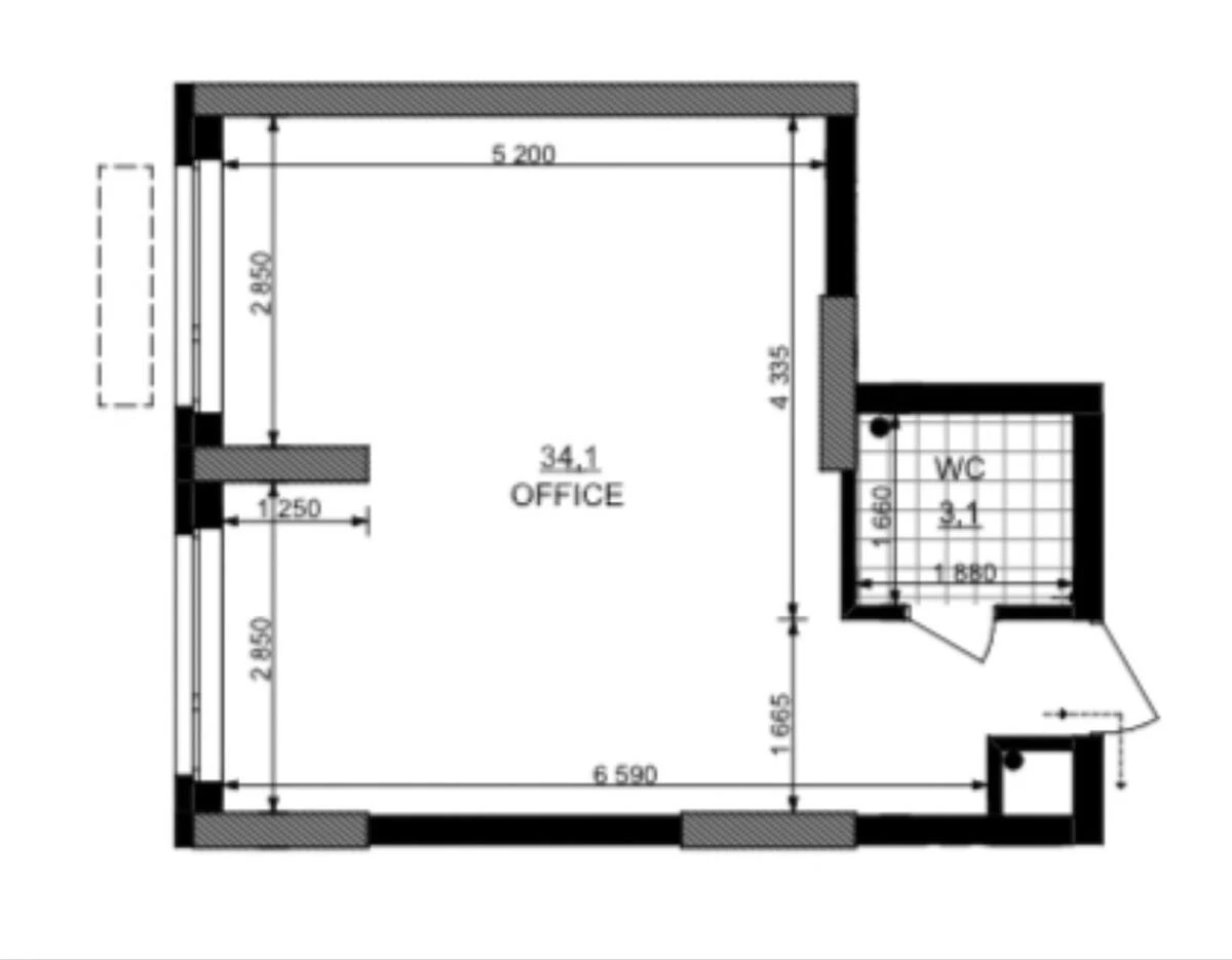
Загальна площа
37 м2
Загальний стан
Без ремонту
Ціна:
2 934 774 грн.
71 000 USD
Опис об'єкту
ЖК «Куб», приміщення вільного призначення. Можна під офіс, комерція, салон, студія, open space. Санвузол в офісі, відкритий світлий простір, є місце для шафи, кухні та робочої зони, топова локація в районі Дніпровської набережної та Епіцентру. Виїзд на Дарницький міст і міст Патона, до Осокорків і Лівобережної 3,5 км.
Додаткова інформація