Sell

All photos (8)
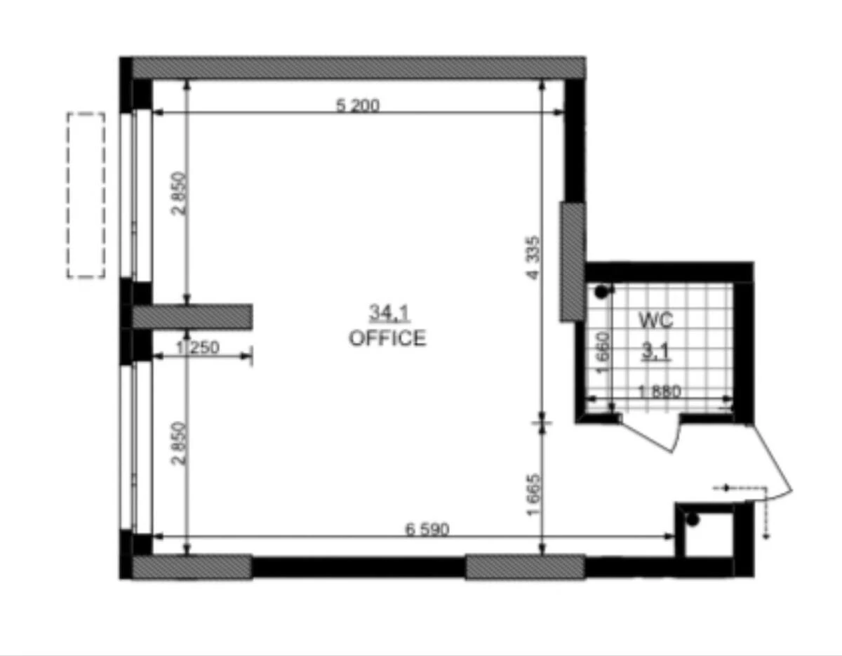
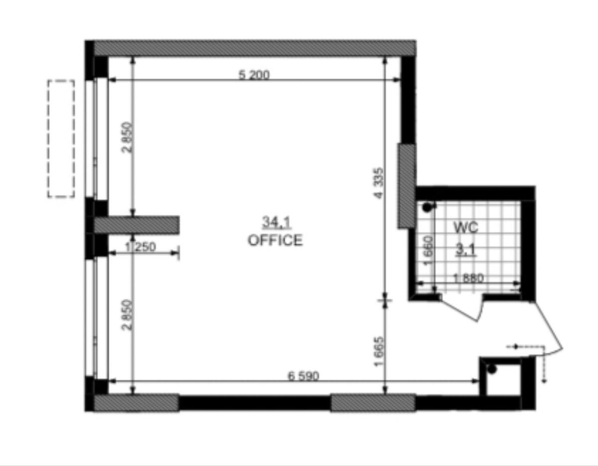
Office vul. Bereznjakivs'ka 29, 37m2
- Add to favorites
-
Share link
Market type
Secondary market
Street
vul. Bereznjakivs'ka 29
Purpose
Office Premise
Floor
2 Floor
Number of storeys
26 storey house
Total area
37 м2
General state
Without repair
Price:
2 934 774 UAH
71 000 USD
Description of the object
Cube residential complex, premises for free use. Can be used for office, commerce, salon, studio, open space. Bathroom in the office, open bright space, there is a place for a wardrobe, kitchen and work area, top location near the Dnipro embankment and the Epicenter. Exit to the Darnytskyi Bridge and the Paton Bridge, 3.5 km to Osokorky and Livoberezhna.
Additional Information