Office pr-t Golosii'vs'kyj 93, 363m2

  • Holosiivskyi District pr-t Golosii'vs'kyj 93
  • Code: RC-221-302
  • Added by: 14.02.2026
  • Add to favorites
Market type
Secondary market
Street
pr-t Golosii'vs'kyj 93
Purpose
Office Premise
Floor
1 Floor
Number of storeys
7 storey house
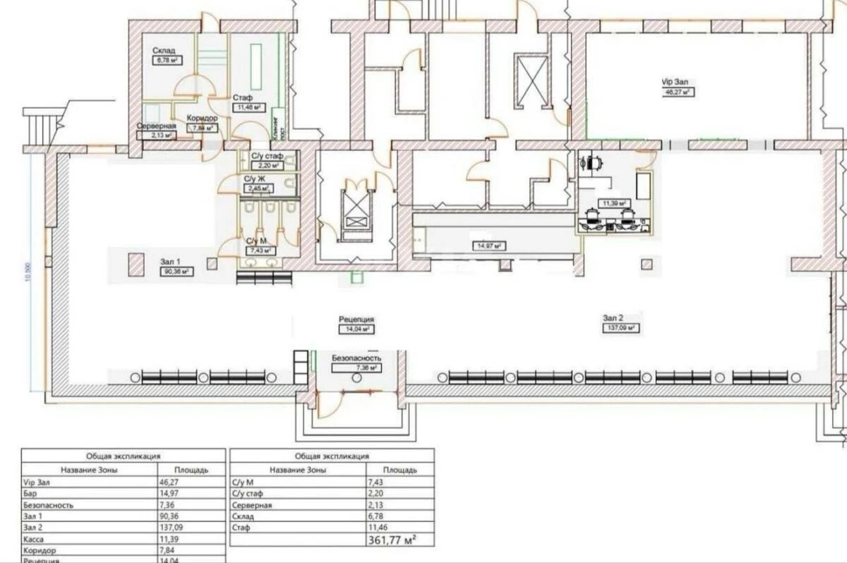
Total area
363 м2
General state
With repair
Price:
182 000 UAH
4 232 USD
Description of the object

Premises for free use. Basement premises with a convenient separate entrance, an excellent glass facade overlooking Holosiivskyi Avenue with heavy traffic and pedestrian flow. Nearby are: a hotel, Renault/Nissan Holosiivskyi car dealership, office centre, banks, university, residential areas, supermarkets, and a metro station 900 metres away. Utilities: electricity, heating, water supply, sewerage.

Similar offers