Офис пр-т Голосеевский 93, 363м2

  • Голосеевский район пр-т Голосеевский 93
  • Код: RC-221-302
  • Добавлено: 14.02.2026
  • Добавить в избранное
Тип рынка
Вторичный рынок
Улица
пр-т Голосеевский 93
Призначення
Офисное помещение
Этаж
1 Этаж
Этажность
7 этажный дом
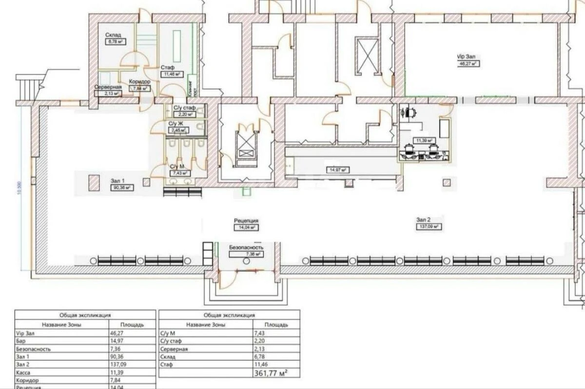
Общая площадь
363 м2
Общее состояние
С ремонтом
Цена:
182 000 грн.
4 232 USD
Описание объекта

Помещение свободного назначения. Цокольное помещение с удобным отдельным входом, отличный стеклянный фасад, из которого открывается вид на Голосеевский проспект с интенсивным потоком автомобилей и пешеходов. Рядом находятся: отель, автосалон Renault/Nissan Голосеевский, офисный центр, банки, университет, жилые кварталы, супермаркеты, до станции метро 900 метров. Инженерные коммуникации: электричество, отопление, водоснабжение, водоотведение.

Похожие предложения