Дiм вул. Садова 12-а, 212м2, місто Київ

  • Київ вул. Садова 12-а 1
  • Код: SH-216-217
  • Добавлено: 26.05.2026
  • Додати в обране
Тип ринку
Вторинний ринок
Вид
Однокімнатна
Вулиця
вул. Садова 12-а 1
Соток
8
Кількість кімнат
5
Поверховість
2 поверховий будинок
Загальний стан
Без ремонту
Ціна:
6 283 015 грн.
142 000 USD
Опис об'єкту

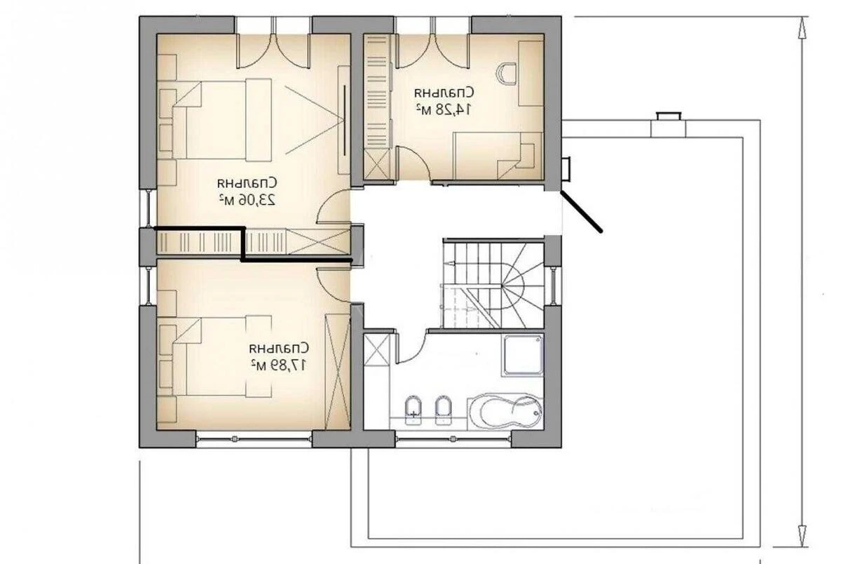
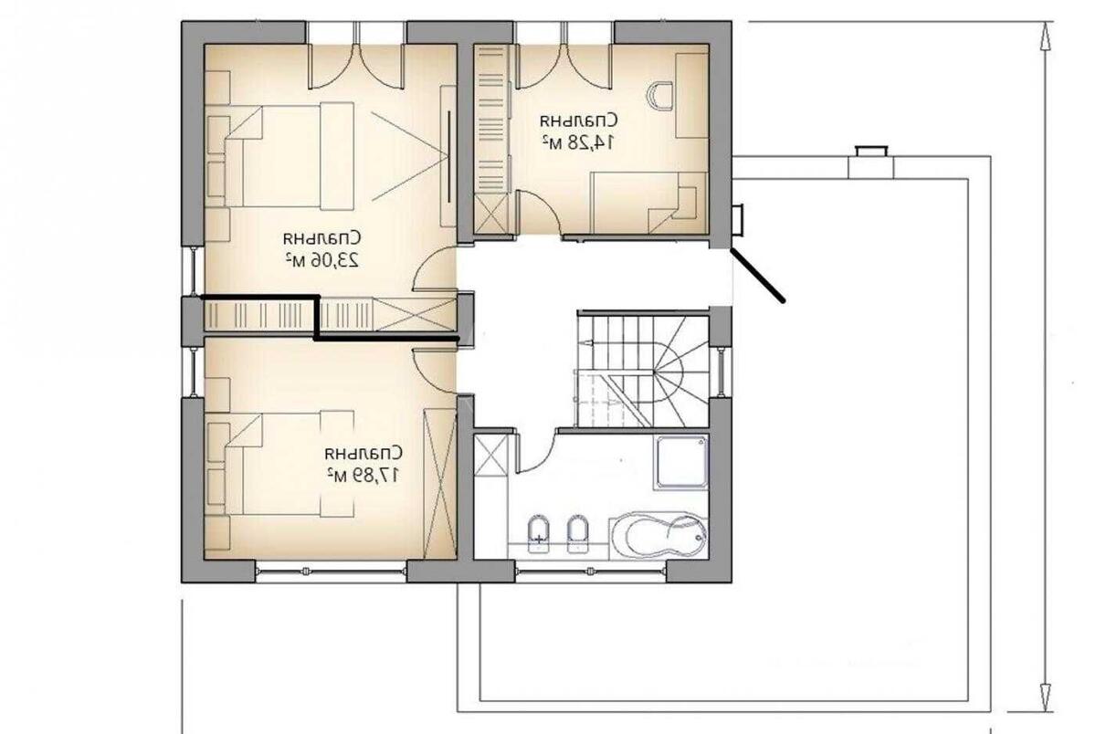
5 кімнатний будинок. Ділянка правильної прямокутної форми розмірами 20*40м, цільове призначення 'під садівництво'. Опалювальна площа 212м2 + 40м2 гараж + 52м2 тераса 2-го поверху над гаражем. Свердловина д110мм глибиною 43м (канівський водоносний шар) з занурювальним насосом та паспортом свердловини. Електроенергії на ділянку заведено 3ф - 10кВт, за розуміння необхідної кількості, можна докупити в садовому товаристві за 1кВт - $250.

Схожі пропозиції