Дoм ул. Садовая 12-я, 212м2, город Киев

  • Київ ул. Садовая 12-я 1
  • Код: SH-216-217
  • Добавлено: 26.05.2026
  • Добавить в избранное
Тип рынка
Вторичный рынок
Вид
Однокомнатная
Улица
ул. Садовая 12-я 1
Соток
8
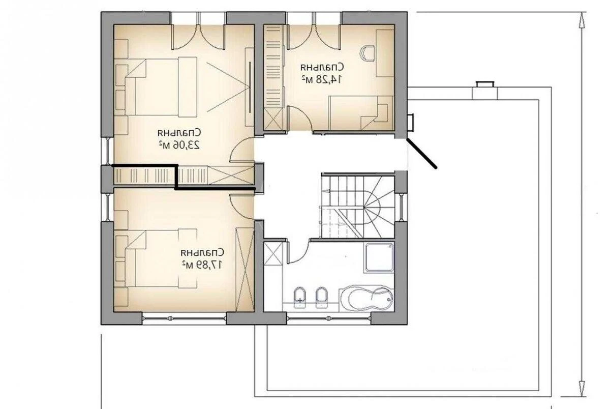
Количество комнат
5
Этажность
2 этажный дом
Общее состояние
Без ремонта
Цена:
6 283 015 грн.
142 000 USD
Описание объекта

5 комнатный дом. Участок правильной прямоугольной формы размерами 20*40м, целевое назначение 'под садоводство'. Отапливаемая площадь 212м2 + 40м2 гараж + 52м2 терраса 2-го этажа над гаражом. Скважина д110мм глубиной 43м (каневский водоносный слой) с погружным насосом и паспортом скважины. Электроэнергии на участок заведено 3ф - 10кВт, при понимании необходимого количества, можно докупить в садовом товариществе за 1кВт - $250.

Похожие предложения

Сопутствующие теги