House vul. Sadova 12-a, 212m2, Kyiv city

  • Київ vul. Sadova 12-a 1
  • Code: SH-216-217
  • Added by: 26.05.2026
  • Add to favorites
Market type
Secondary market
View
Single Room
Street
vul. Sadova 12-a 1
Are
8
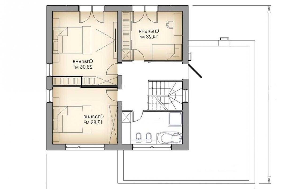
Number of rooms
5
Number of storeys
2 storey house
General state
Without repair
Price:
6 283 015 UAH
142 000 USD
Description of the object

5 room house. Plot of regular rectangular shape measuring 20*40m, intended purpose 'for gardening '. The heated area is 212m2 + 40m2 garage + 52m2 terrace of the 2nd floor above the garage. Well d110mm 43m deep (Kaniv aquifer) with a submersible pump and a well passport. Electricity to the site is 3f - 10kW, if you understand the required amount, you can buy in the garden society for 1kW - $ 250.

Similar offers