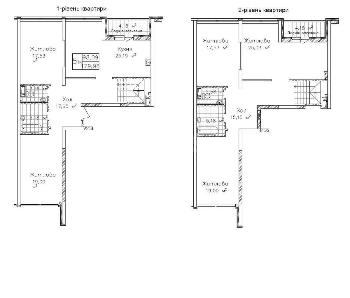
5к квартира вул. Львівська 15

  • Святошинський район вул. Львівська 15
  • Код: SF-3-298-780
  • Добавлено: 31.03.2026
  • Додати в обране
Тип ринку
Первинний ринок
Вулиця
вул. Львівська 15
Кількість кімнат
5
Поверх
0 Поверх
Поверховість
25 поверховий будинок
Загальна площа
180 м2
Загальний стан
Без ремонту
Ціна:
8 070 391 грн.
184 000 USD
Опис об'єкту

ЖК Святобор, 5 кімнатна квартира. Квартира має 5 окремих житлових кімнат. На першому поверсі знаходиться велика кухня-вітальня 25 м2 з гарним панорамним видом у тихий двір, два санвузли, дві житлові кімнати та балкон. На другому поверсі є 3 житлові кімнати, балкон, 2 санвузли та додаткові зони для розміщення гардеробу. В квартирі мінімум несучих конструкцій, що дає можливість і легко перепланувати.

Схожі пропозиції