5к квартира ул. Львовская 15

  • Святошинский район ул. Львовская 15
  • Код: SF-3-298-780
  • Добавлено: 31.03.2026
  • Добавить в избранное
Тип рынка
Первичный рынок
Улица
ул. Львовская 15
Количество комнат
5
Этаж
0 Этаж
Этажность
25 этажный дом
Общая площадь
180 м2
Общее состояние
Без ремонта
Цена:
8 070 391 грн.
184 000 USD
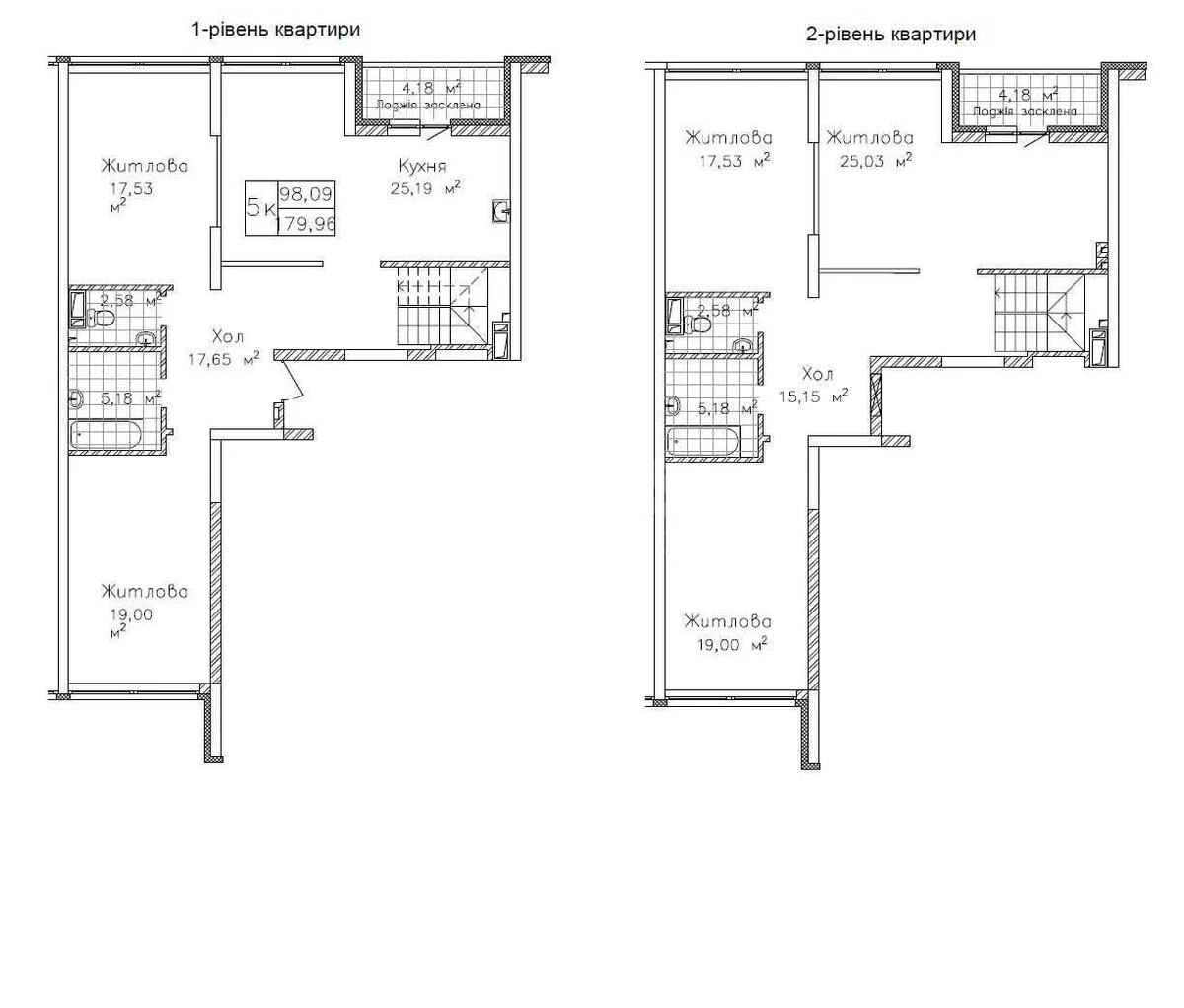
Описание объекта

ЖК «Святобор», 5-комнатная квартира. В квартире 5 отдельных жилых комнат. На первом этаже расположена просторная кухня-гостиная площадью 25 м² с прекрасным панорамным видом на тихий двор, два санузла, две жилые комнаты и балкон. На втором этаже расположены 3 жилые комнаты, балкон, 2 санузла и дополнительные зоны для размещения гардероба. В квартире минимум несущих конструкций, что дает возможность легко перепланировать.

Похожие предложения