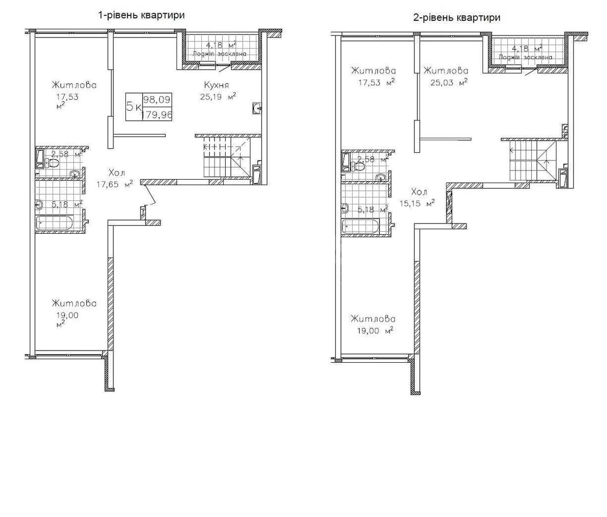
5k apartment vul. L'vivs'ka 15

  • Sviatoshynskyi District vul. L'vivs'ka 15
  • Code: SF-3-298-780
  • Added by: 31.03.2026
  • Add to favorites
Market type
Primary market
Street
vul. L'vivs'ka 15
Number of rooms
5
Floor
0 Floor
Number of storeys
25 storey house
Total area
180 м2
General state
Without repair
Price:
8 070 391 UAH
184 000 USD
Description of the object

Svyatobor residential complex, 5-room flat. The flat comprises 5 separate living rooms. On the ground floor, there is a large 25 m² kitchen-living room with a lovely panoramic view of a quiet courtyard, two bathrooms, two living rooms and a balcony. On the second floor, there are 3 living rooms, a balcony, 2 bathrooms and additional space for a wardrobe. The flat has a minimum of load-bearing structures, making it easy to reconfigure.

Similar offers