5к квартира вул. Кудрявська 45

  • Шевченківський район вул. Кудрявська 45
  • Код: SF-3-246-952
  • Добавлено: 27.11.2025
  • Додати в обране
Тип ринку
Первинний ринок
Вулиця
вул. Кудрявська 45
Кількість кімнат
5
Поверх
16 Поверх
Поверховість
16 поверховий будинок
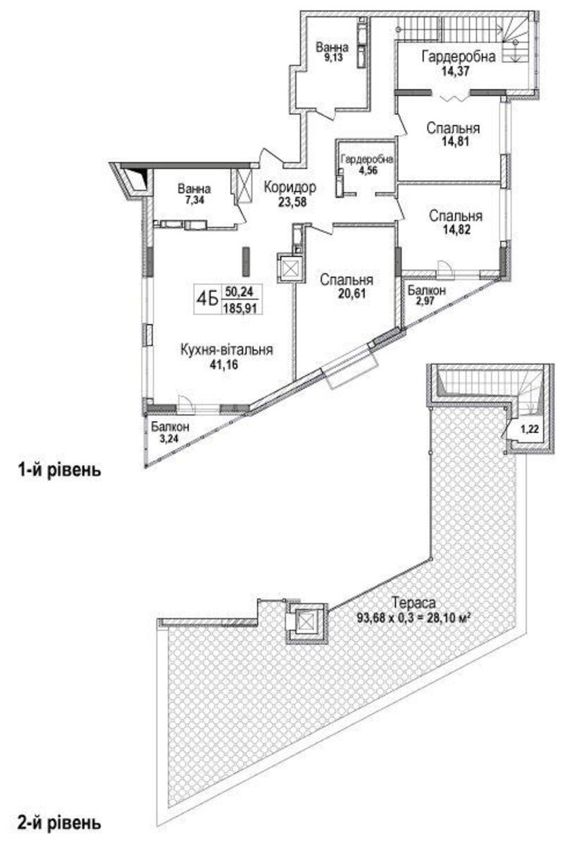
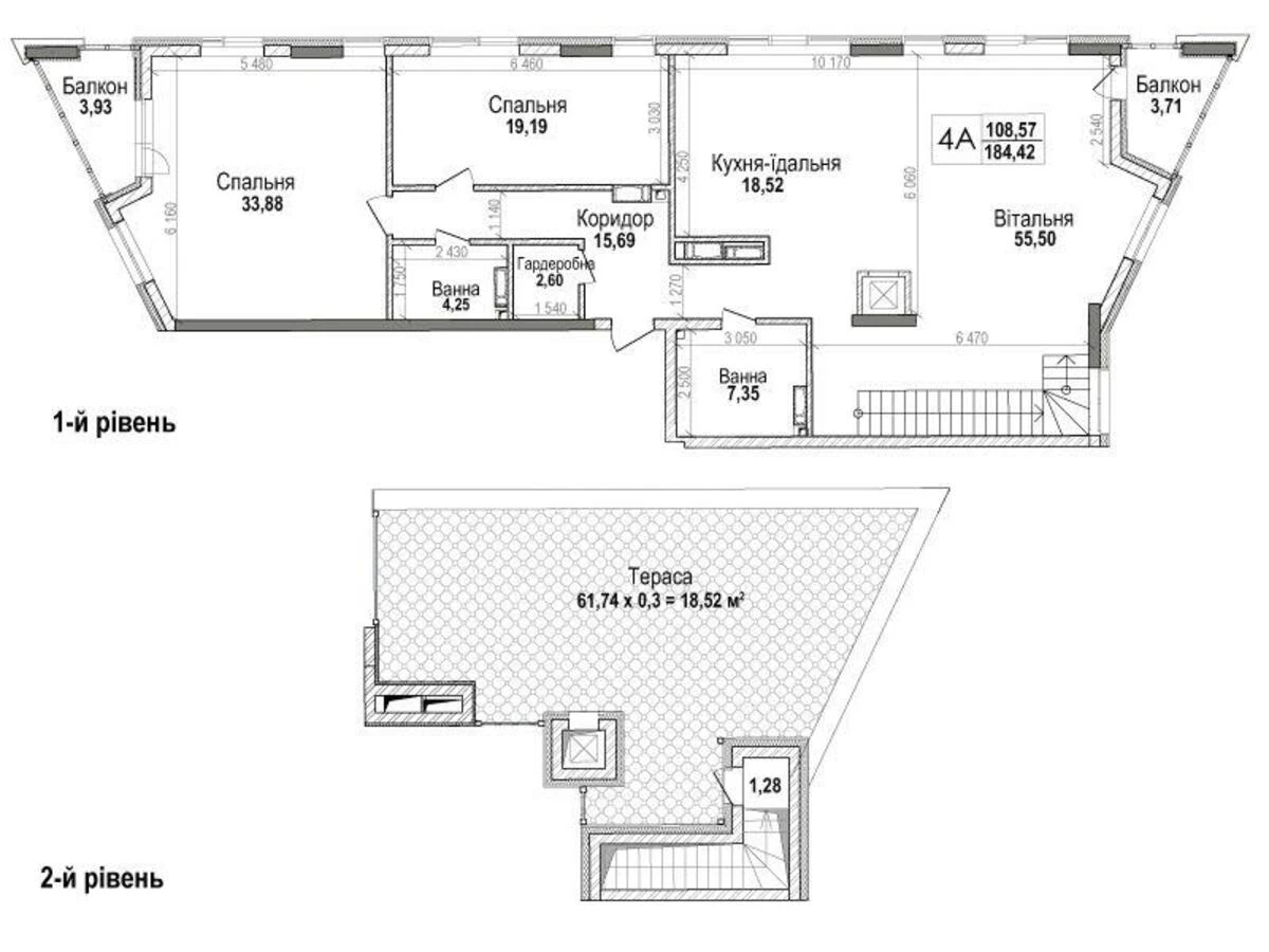
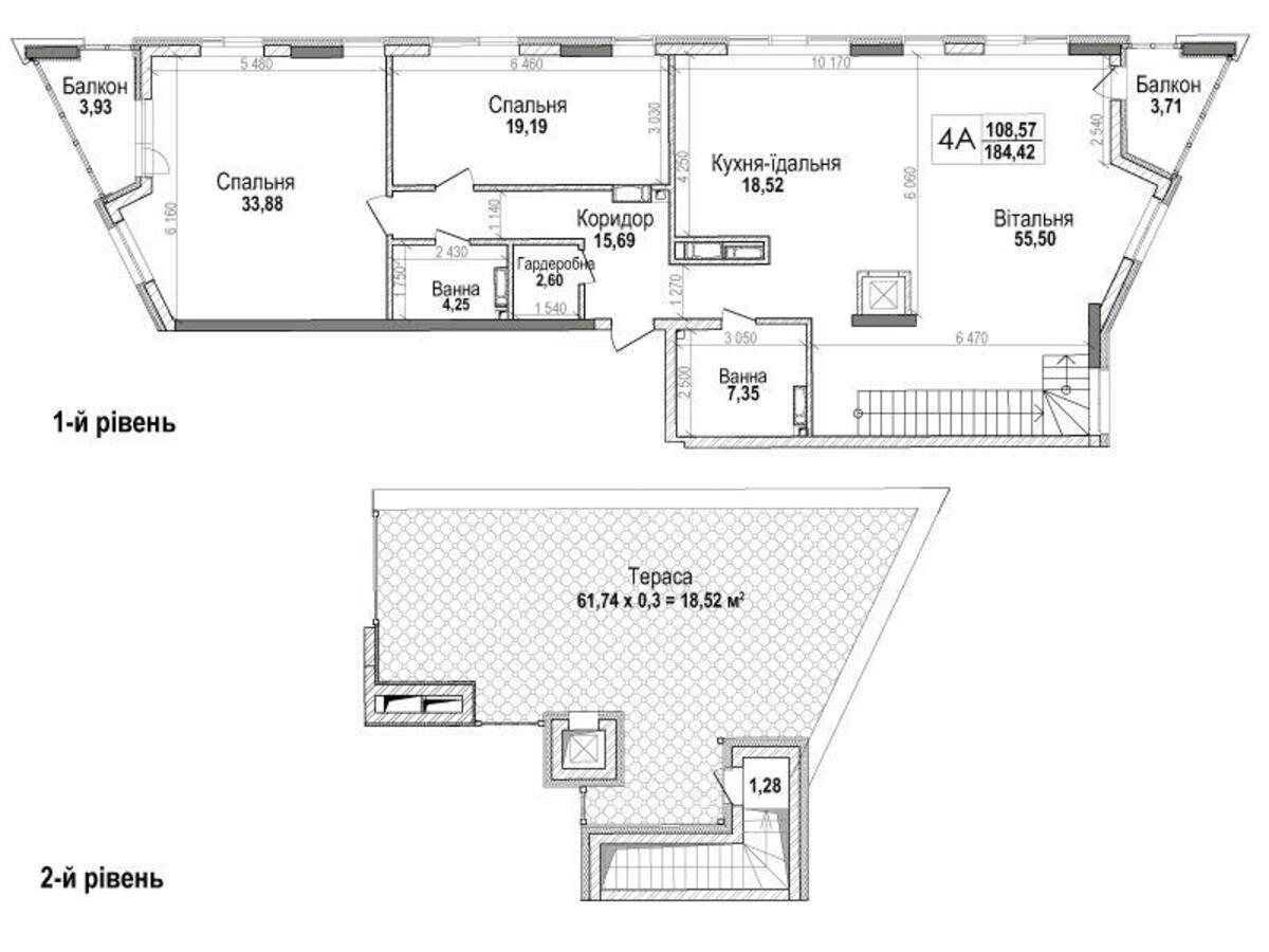
Загальна площа
540 м2
Загальний стан
Без ремонту
Ціна:
63 421 489 грн.
1 500 000 USD
  • AXIS Real Estate
  • AXIS Real Estate
  • AXIS Real Estate
Опис об'єкту

ЖК “Concordia”, 5 кімнатна квартира. Планування: вільне — повна свобода для реалізації вашого дизайнерського проєкту. Паркінг: три паркомісця в підземному паркінгу. Краєвиди: захоплюючий панорамний вид із вікон та тераси. Монолітно-каркасна технологія будівництва. Фасад: вентильований із керамограніту. Стіни: керамічний блок (250 мм) з утепленням базальтовими плитами (150 мм). Двері: протиударні, протипожежні з декоративною МДФ накладкою.

Додаткова інформація