5k apartment vul. Kudrjavs'ka 45

  • Shevchenkivskyi District vul. Kudrjavs'ka 45
  • Code: SF-3-246-952
  • Added by: 27.11.2025
  • Add to favorites
Market type
Primary market
Street
vul. Kudrjavs'ka 45
Number of rooms
5
Floor
16 Floor
Number of storeys
16 storey house
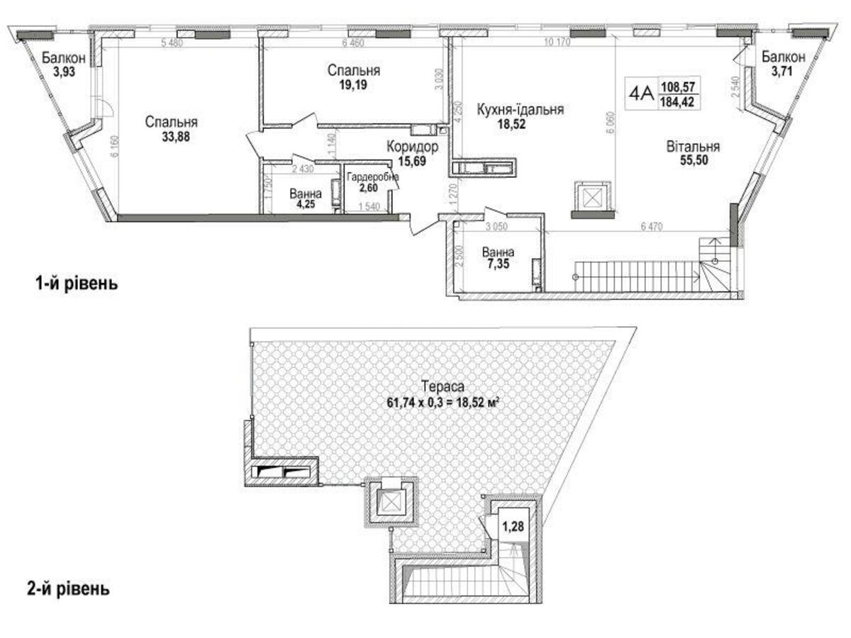
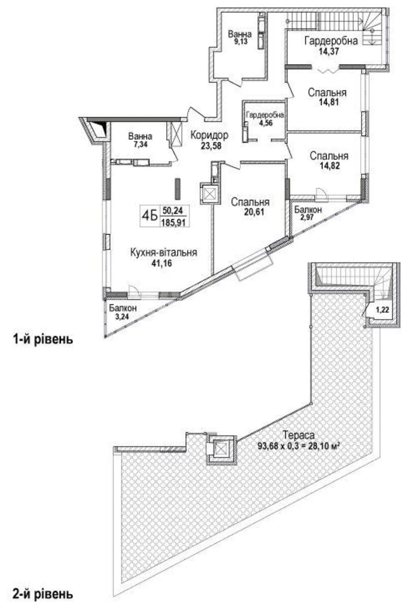
Total area
540 м2
General state
Without repair
Price:
63 421 489 UAH
1 500 000 USD
  • AXIS Real Estate
  • AXIS Real Estate
  • AXIS Real Estate
Description of the object

Concordia residential complex, 5-room apartment. Layout: free - complete freedom to realize your design project. Parking: three parking spaces in the underground parking lot. Views: breathtaking panoramic views from the windows and terrace. Monolithic frame construction technology. Facade: ventilated porcelain stoneware. Walls: ceramic block (250 mm) with insulation with basalt slabs (150 mm). Doors: shockproof, fireproof with a decorative MDF lining.

Additional Information