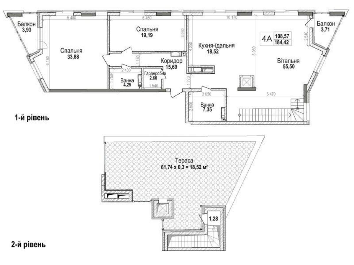
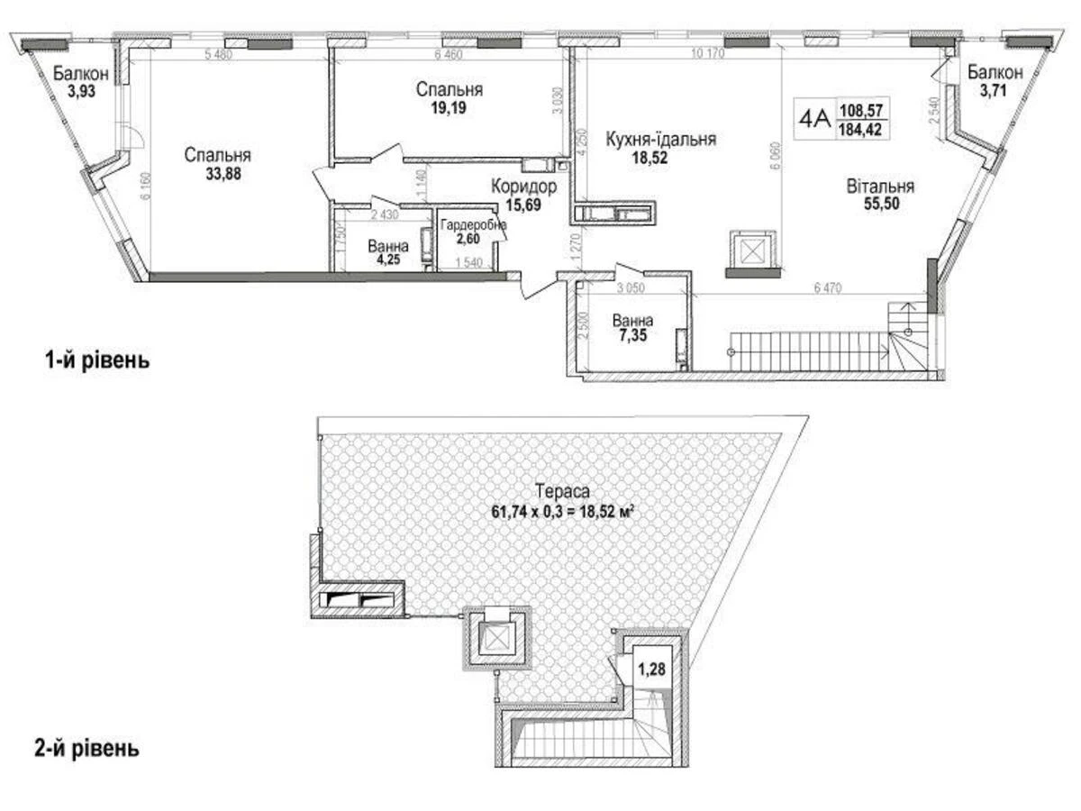
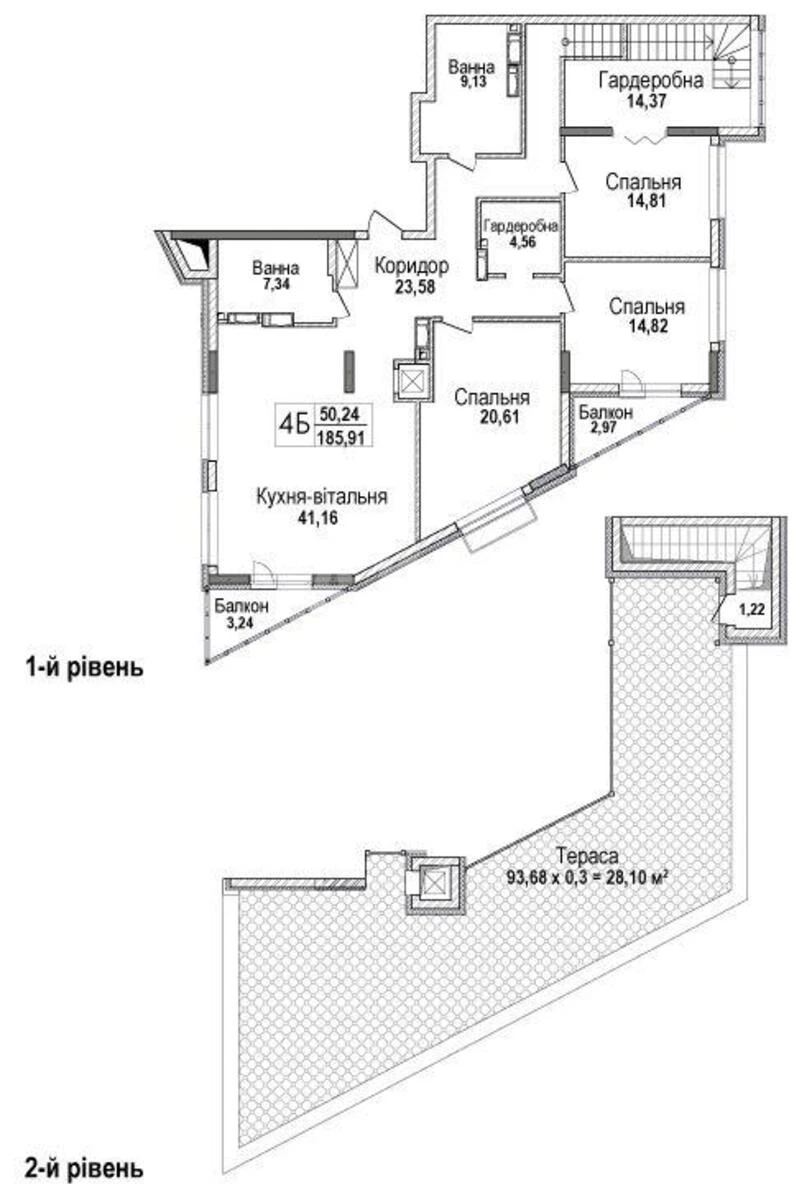
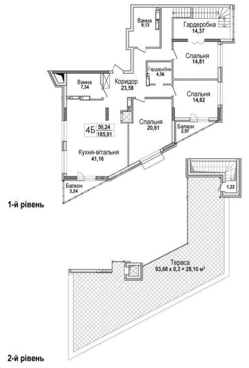
5к квартира ул. Кудрявская 45

  • Шевченковский район ул. Кудрявская 45
  • Код: SF-3-246-952
  • Добавлено: 27.11.2025
  • Добавить в избранное
Тип рынка
Первичный рынок
Улица
ул. Кудрявская 45
Количество комнат
5
Этаж
16 Этаж
Этажность
16 этажный дом
Общая площадь
540 м2
Общее состояние
Без ремонта
Цена:
63 421 489 грн.
1 500 000 USD
  • AXIS Real Estate
  • AXIS Real Estate
  • AXIS Real Estate
Описание объекта

ЖК "Concordia", 5 комнатная квартира. Планировка: свободная - полная свобода для реализации вашего дизайнерского проекта. Паркинг: три паркоместа в подземном паркинге. Виды: захватывающий панорамный вид из окон и террасы. Монолитно-каркасная технология строительства. Фасад: вентилируемый из керамогранита. Стены: керамический блок (250 мм) с утеплением базальтовыми плитами (150 мм). Двери: противоударные, противопожарные с декоративной МДФ накладкой.

Дополнительная информация