Продаж

Усі фото (9)
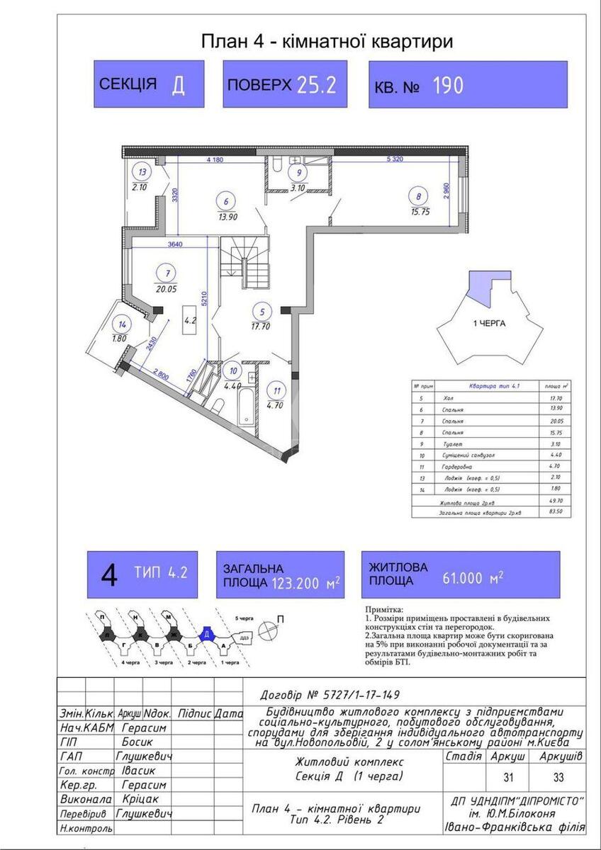
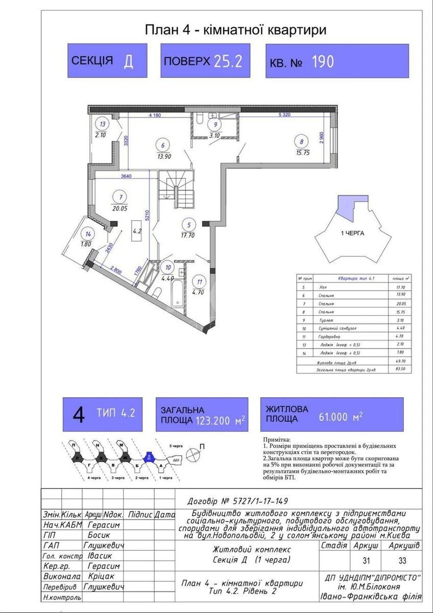
4к квартира вул. Новопольова 2
- Додати в обране
-
Подiлитись посиланням
Тип ринку
Первинний ринок
Вулиця
вул. Новопольова 2
Кількість кімнат
4
Поверх
25 Поверх
Поверховість
25 поверховий будинок
Загальна площа
124 м2
Загальний стан
Без ремонту
Ціна:
5 411 048 грн.
131 000 USD
Опис об'єкту
ЖК Family & Friends, 4 кімнатна квартира. У квартирі виконана лазерна стяжка підлоги, розведення опалення та встановлені радіатори, вода та електрика до квартири. У кожному під'їзді 4 ліфти. Квартира дворівнева та розміщена на 25 поверсі 25 поверхового будинку (секція Д). Загальна площа квартири 123.2 м кв з них на першому рівні загальна кімната 11.3 кв, кухня 9 м, коридор 13 м, суміщений санвузол 4.6 м, лоджія 1.8 м. На другому рівні хол 17.7 м, спальні 13.9,20.05 м; таулет 3.9 м, суміщений санвузол 4.4 м, вбиральня 4.7 м, дві лоджії 2.1 та 1.8 м. Будинок зданий та введений в експлуатацію.
Додаткова інформація