Продажа

Все фото (9)
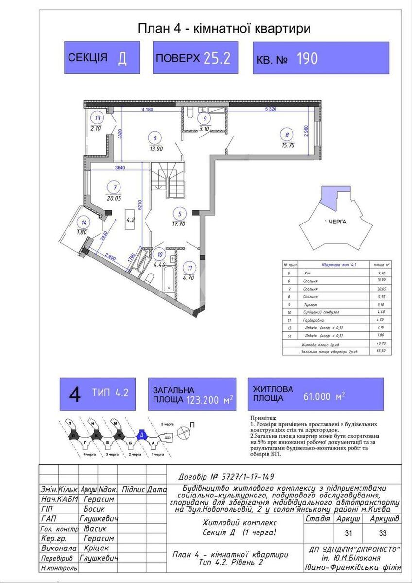
4к квартира ул. Новополевая 2
- Добавить в избранное
-
Поделиться ссылкой
Тип рынка
Первичный рынок
Улица
ул. Новополевая 2
Количество комнат
4
Этаж
25 Этаж
Этажность
25 этажный дом
Общая площадь
124 м2
Общее состояние
Без ремонта
Цена:
5 411 048 грн.
131 000 USD
Описание объекта
ЖК Family & Friends, 4 комнатная квартира. В квартире выполнена лазерная стяжка пола, разводка отопления и установлены радиаторы, вода и электричество в квартиру. В каждом под' езде 4 лифта. Квартира двухуровневая и размещена на 25 этаже 25 этажного дома (секция Д). Общая площадь квартиры 123.2 м кв из них на первом уровне общая комната 11.3 кв, кухня 9 м, коридор 13 м, совмещенный санузел 4.6 м, лоджия 1.8 м. На втором уровне холл 17.7 м, спальни 13.9,20.05 м; таулет 3.9 м, совмещенный санузел 4.4 м, гардеробная 4.7 м, две лоджии 2.1 и 1.8 м. Дом сдан и введен в эксплуатацию.
Дополнительная информация