
4k apartment vul. Novopol'ova 2
- Add to favorites
-
Share link
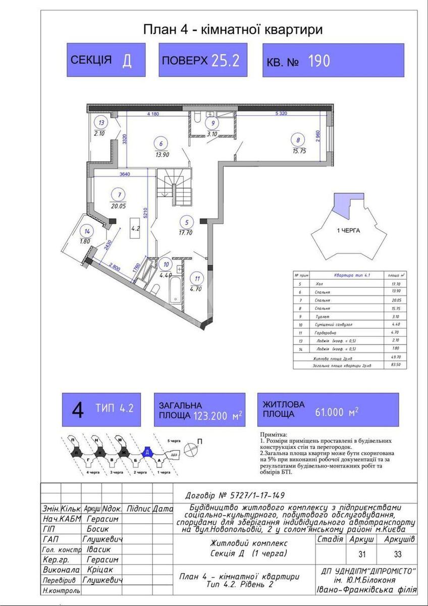
Family & Friends residential complex, 4-room apartment. The apartment has a laser floor screed, heating, radiators, water and electricity to the apartment. There are 4 elevators in each entrance. The apartment is on two levels and is located on the 25th floor of a 25-storey building (section D). The total area of the apartment is 123.2 sq.m. On the first level there is a common room of 11.3 sq.m., a kitchen of 9 m, a corridor of 13 m, a combined bathroom of 4.6 m, a loggia of 1.8 m. On the second level there is a hall of 17.7 m, bedrooms 13.9, 20.05 m; taulette 3.9 m, combined bathroom 4.4 m, dressing room 4.7 m, two loggias 2.1 and 1.8 m. The house is handed over and put into operation.