3к квартира вул. Воскресенська 14

  • Дніпровський район вул. Воскресенська 14
  • Код: SF-3-253-738
  • Добавлено: 31.01.2026
  • Додати в обране
Тип ринку
Первинний ринок
Вулиця
вул. Воскресенська 14
Кількість кімнат
3
Поверх
19 Поверх
Поверховість
25 поверховий будинок
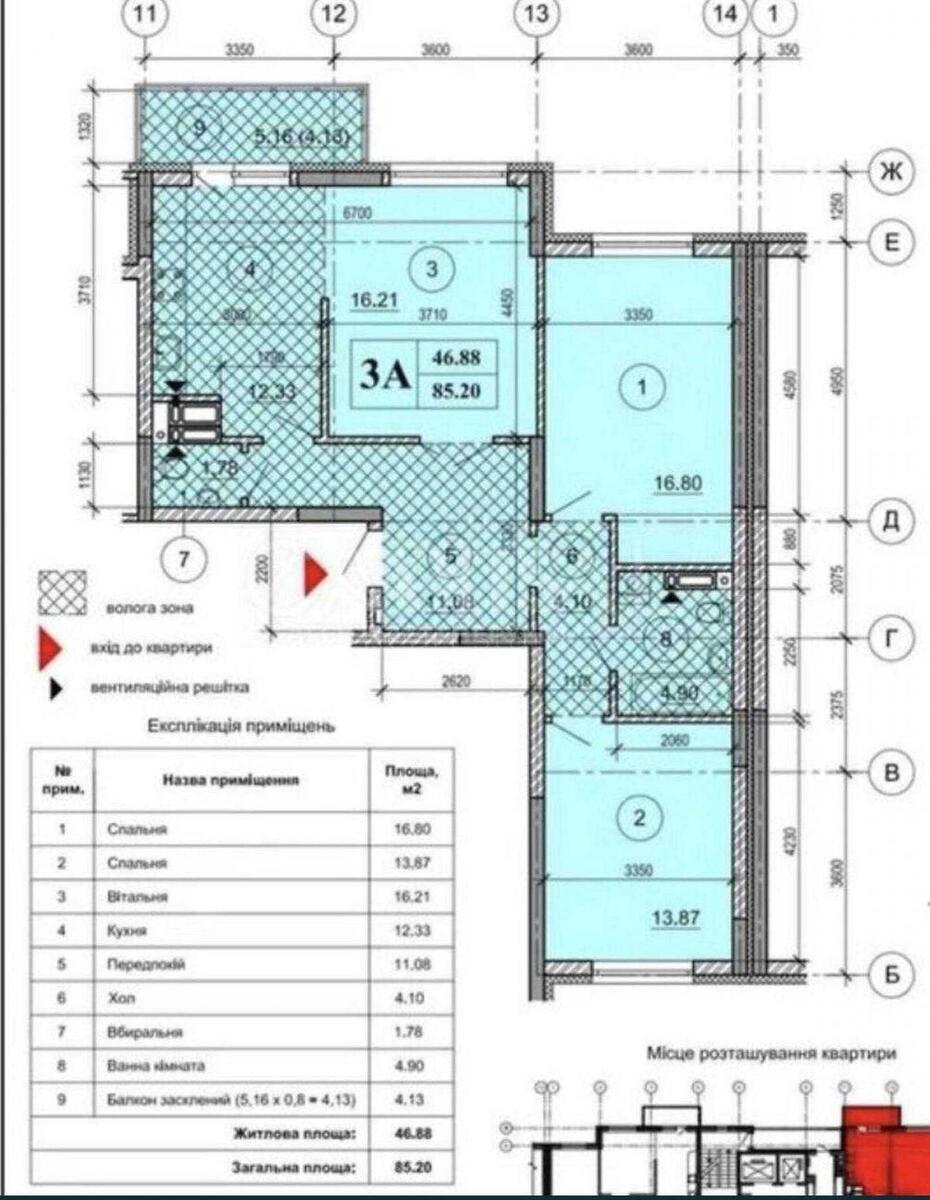
Загальна площа
87 м2
Загальний стан
З ремонтом
Ціна:
8 350 241 грн.
195 000 USD
Опис об'єкту

ЖК Паркові озера, 3 кімнатна квартира. Квартира в світлих тонах з просторою прихожою з великою вбудованою шафою-купе, кухня вітальня 30 кВ. м. з панорамними вікнами на зелену зону та виходом на заскелену лоджію. Господарська зона відокремлена від гостьової та має свій санвузол з ванною та гігієнічним душем та 2 окремі спальні. Ремонт виконаний з використанням якісних матеріалів, є підігрів підлоги та охоронна сигналізація Шериф. На підлозі паркетна дошка та керамограніт, стіни декоративна штукатурка, стеля гіпсокартон, трекове освітлення, двері прихованого монтажу, вся побутова техніка Electrolux, кавомашина Bosh, прально-сушильна машина Electrolux, якісні вбудовані меблі, мякі меблі Blanche.

Схожі пропозиції