3к квартира ул. Воскресенская 14

  • Днепровский район ул. Воскресенская 14
  • Код: SF-3-253-738
  • Добавлено: 31.01.2026
  • Добавить в избранное
Тип рынка
Первичный рынок
Улица
ул. Воскресенская 14
Количество комнат
3
Этаж
19 Этаж
Этажность
25 этажный дом
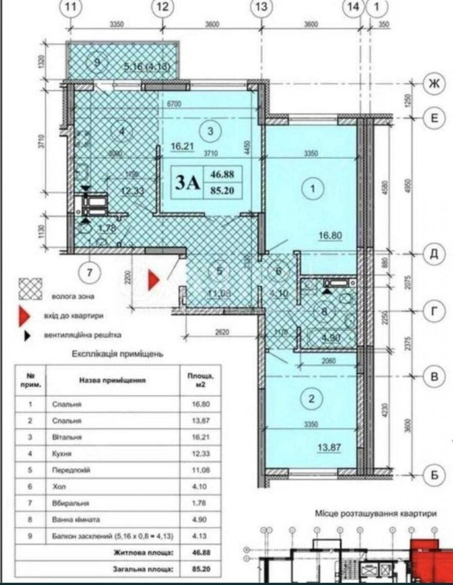
Общая площадь
87 м2
Общее состояние
С ремонтом
Цена:
8 350 241 грн.
195 000 USD
Описание объекта

ЖК Парковые озера, 3 комнатная квартира. Квартира в светлых тонах с просторной прихожей с большим встроенным шкафом-купе, кухня гостиная 30 кВ. м. с панорамными окнами на зеленую зону и выходом на застекленную лоджию. Хозяйственная зона отделена от гостевой и имеет свой санузел с ванной и гигиеническим душем и 2 отдельные спальни. Ремонт выполнен с использованием качественных материалов, есть подогрев пола и охранная сигнализация Шериф. На полу паркетная доска и керамогранит, стены декоративная штукатурка, потолок гипсокартон, трековое освещение, двери скрытого монтажа, вся бытовая техника Electrolux, кофемашина Bosh, стирально-сушильная машина Electrolux, качественная встроенная мебель, мягкая мебель Blanche.

Похожие предложения