3k apartment vul. Voskresens'ka 14

  • Dniprovskyi District vul. Voskresens'ka 14
  • Code: SF-3-253-738
  • Added by: 31.01.2026
  • Add to favorites
Market type
Primary market
Street
vul. Voskresens'ka 14
Number of rooms
3
Floor
19 Floor
Number of storeys
25 storey house
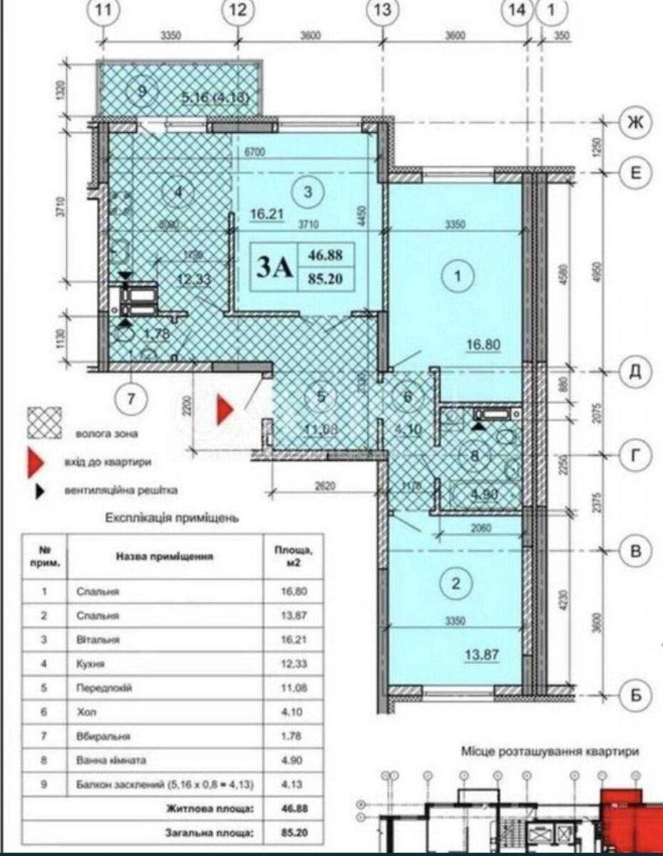
Total area
87 м2
General state
With repair
Price:
8 350 241 UAH
195 000 USD
Description of the object

Park Lakes residential complex, 3-room apartment. The apartment is decorated in light colors with a spacious entrance hall with a large built-in wardrobe, a kitchen, a living room of 30 sq. m. with panoramic windows overlooking the green area and access to a glazed loggia. The living area is separated from the guest area and has its own bathroom with a bathtub and a hygienic shower and 2 separate bedrooms. The renovation was made using quality materials, there is underfloor heating and a Sheriff burglar alarm system. The flooring is parquet and porcelain stoneware, the walls are decorative plaster, the ceiling is plasterboard, track lighting, flush-mounted doors, all Electrolux appliances, Bosh coffee machine, Electrolux washer-dryer, high-quality built-in furniture, Blanche upholstered furniture.

Similar offers