3к квартира вул. Васильківська 1

  • Голосіївський район вул. Васильківська 1
  • Код: SF-3-308-676
  • Добавлено: 23.04.2026
  • Додати в обране
Тип ринку
Первинний ринок
Вулиця
вул. Васильківська 1
Кількість кімнат
3
Поверх
12 Поверх
Поверховість
24 поверховий будинок
Загальна площа
105 м2
Загальний стан
Без ремонту
Ціна:
14 788 405 грн.
335 000 USD
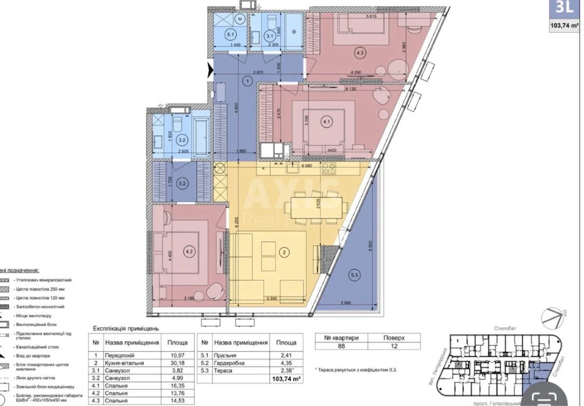
Опис об'єкту

ЖК White Lines, 3 кімнатна квартира. Планування: Кухня-вітальня — 30,18 м². Три окремі спальні: 16,35 / 13,76 / 14,53 м². Два санвузли. Пральня — 2,41 м². Гардеробна — 4,35 м². Простора прихожа — 10,97 м². Тераса — 2,38 м² (рахується з коефіцієнтом 0,3).

Схожі пропозиції