3к квартира ул. Васильковская 1

  • Голосеевский район ул. Васильковская 1
  • Код: SF-3-308-676
  • Добавлено: 23.04.2026
  • Добавить в избранное
Тип рынка
Первичный рынок
Улица
ул. Васильковская 1
Количество комнат
3
Этаж
12 Этаж
Этажность
24 этажный дом
Общая площадь
105 м2
Общее состояние
Без ремонта
Цена:
14 788 405 грн.
335 000 USD
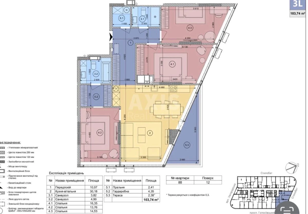
Описание объекта

ЖК White Lines, 3-комнатная квартира. Планировка: Кухня-гостиная — 30,18 м². Три отдельные спальни: 16,35 / 13,76 / 14,53 м². Два санузла. Прачечная — 2,41 м². Гардеробная — 4,35 м². Просторная прихожая — 10,97 м². Терраса — 2,38 м² (учитывается с коэффициентом 0,3).

Похожие предложения