3k apartment vul. Vasyl'kivs'ka 1

  • Holosiivskyi District vul. Vasyl'kivs'ka 1
  • Code: SF-3-308-676
  • Added by: 23.04.2026
  • Add to favorites
Market type
Primary market
Street
vul. Vasyl'kivs'ka 1
Number of rooms
3
Floor
12 Floor
Number of storeys
24 storey house
Total area
105 м2
General state
Without repair
Price:
14 788 405 UAH
335 000 USD
Description of the object

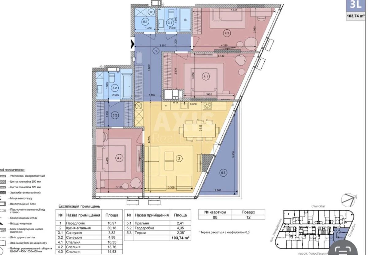
White Lines residential complex, 3-bedroom flat. Layout: Open-plan kitchen and living room — 30.18 m². Three separate bedrooms: 16.35 / 13.76 / 14.53 m². Two bathrooms. Laundry room — 2.41 m². Walk-in wardrobe — 4.35 m². Spacious entrance hall — 10.97 m². Terrace — 2.38 m² (calculated using a coefficient of 0.3).

Similar offers