3к квартира вул. Радченка Петра 27

  • Солом'янський район вул. Радченка Петра 27
  • Код: SF-3-236-080
  • Добавлено: 05.11.2025
  • Додати в обране
Тип ринку
Первинний ринок
Вулиця
вул. Радченка Петра 27
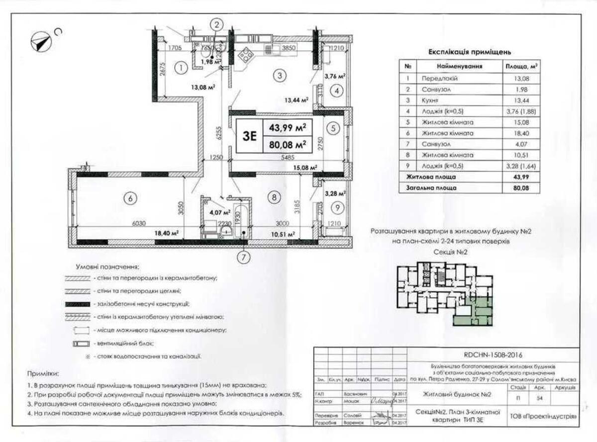
Кількість кімнат
3
Поверх
22 Поверх
Поверховість
26 поверховий будинок
Загальна площа
80 м2
Загальний стан
Без ремонту
Ціна:
3 362 918 грн.
79 999 USD
  • AXIS Real Estate
  • AXIS Real Estate
  • AXIS Real Estate
Опис об'єкту

ЖК Медовий, 3 кімнатна квартира. Квартира після будівельників, можна робити ремонт. Будинок зданий, багато сусідів вже живуть. З квартири відкривається чудовий краєвид на озеро та панораму Києва. Розвинена інфраструктура. Гарна локація.

Додаткова інформація

Схожі пропозиції