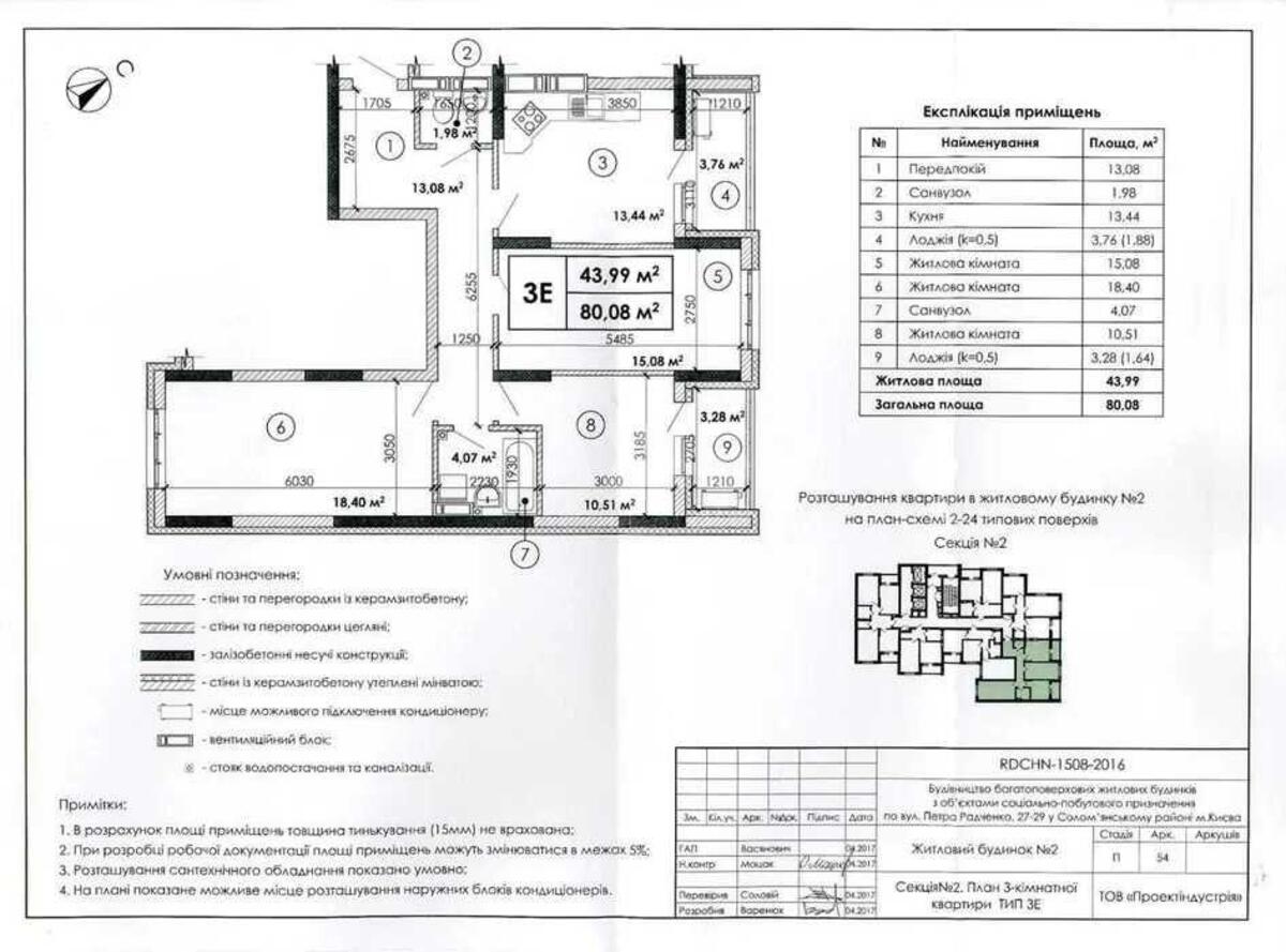
3к квартира ул. Радченко Петра 27

  • Соломенский район ул. Радченко Петра 27
  • Код: SF-3-236-080
  • Добавлено: 05.11.2025
  • Добавить в избранное
Тип рынка
Первичный рынок
Улица
ул. Радченко Петра 27
Количество комнат
3
Этаж
22 Этаж
Этажность
26 этажный дом
Общая площадь
80 м2
Общее состояние
Без ремонта
Цена:
3 362 918 грн.
79 999 USD
  • AXIS Real Estate
  • AXIS Real Estate
  • AXIS Real Estate
Описание объекта

ЖК Медовый, 3 комнатная квартира. Квартира после строителей, можно делать ремонт. Дом сдан, многие соседи уже живут. Из квартиры открывается прекрасный вид на озеро и панораму Киева. Развитая инфраструктура. Хорошая локация.

Дополнительная информация

Похожие предложения