3k apartment vul. Radchenka Petra 27

  • Solomianskyi District vul. Radchenka Petra 27
  • Code: SF-3-236-080
  • Added by: 22.01.2026
  • Add to favorites
Market type
Primary market
Street
vul. Radchenka Petra 27
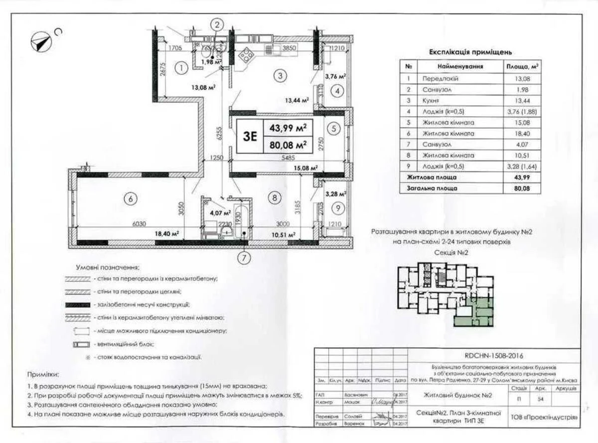
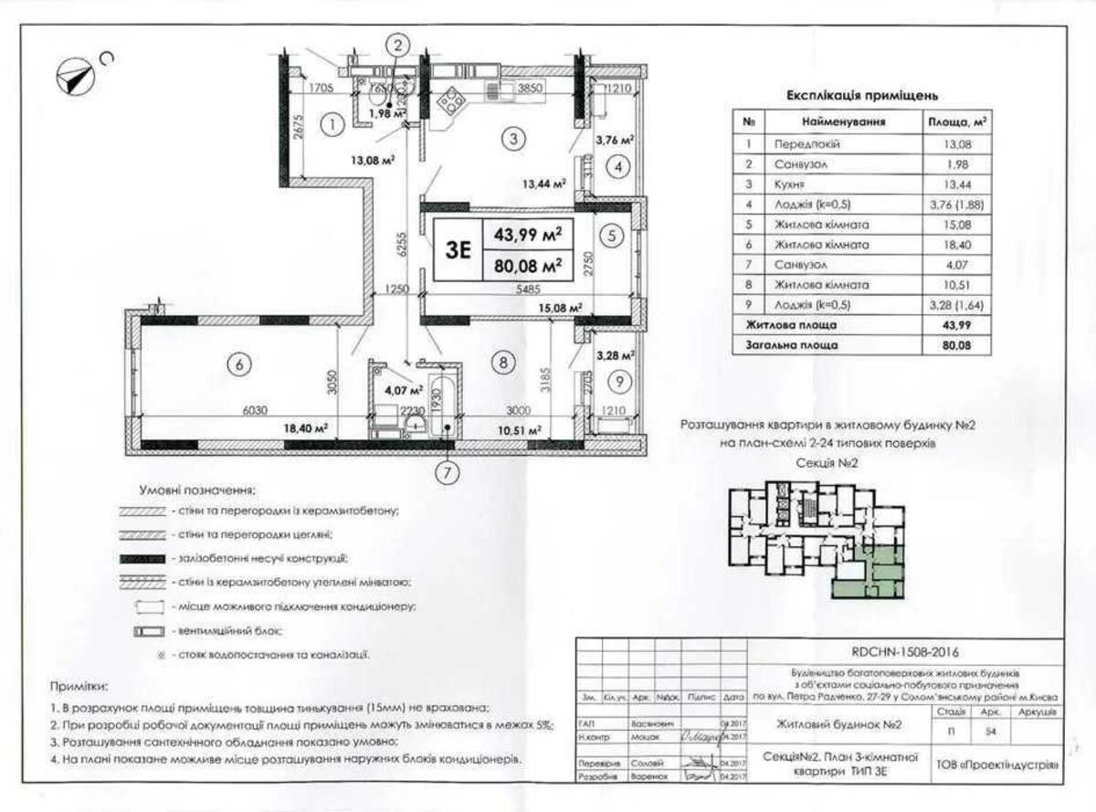
Number of rooms
3
Floor
22 Floor
Number of storeys
26 storey house
Total area
80 м2
General state
Without repair
Price:
3 454 104 UAH
79 999 USD
Description of the object

Honey residential complex, 3-room apartment. The apartment is after the builders, you can make repairs. The house is handed over, many neighbors already live there. The apartment offers a beautiful view of the lake and the panorama of Kyiv. Developed infrastructure. Good location.

Similar offers