3к квартира пр-т Європейського Союзу 1

  • Подільський район пр-т Європейського Союзу 1
  • Код: SF-3-236-108
  • Добавлено: 05.11.2025
  • Додати в обране
Тип ринку
Первинний ринок
Вулиця
пр-т Європейського Союзу 1
Кількість кімнат
3
Поверх
17 Поверх
Поверховість
25 поверховий будинок
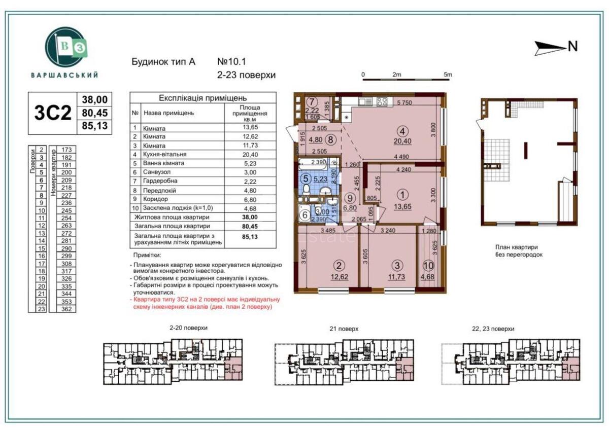
Загальна площа
86 м2
Загальний стан
З ремонтом
Ціна:
6 981 990 грн.
165 000 USD
  • AXIS Real Estate
  • AXIS Real Estate
  • AXIS Real Estate
Опис об'єкту

ЖК Варшавський 3, 3 кімнатна квартира. Простір 86 м² дозволяє комфортно розмістити сім’ю з дітьми або організувати робочий кабінет. Функціональне планування: три окремі кімнати, простора кухня-вітальня, два санвузли. Відсутність меблів - плюс: ви отримуєте «чистий лист» для свого дизайну або пристосування під орендний бізнес. Комфорт-клас ЖК із сучасними інженерними рішеннями: автономна котельня, генератор, охорона — зручно і безпечно.

Додаткова інформація

Схожі пропозиції