3к квартира пр-т Европейского Союза 1

  • Подольский район пр-т Европейского Союза 1
  • Код: SF-3-236-108
  • Добавлено: 05.11.2025
  • Добавить в избранное
Тип рынка
Первичный рынок
Улица
пр-т Европейского Союза 1
Количество комнат
3
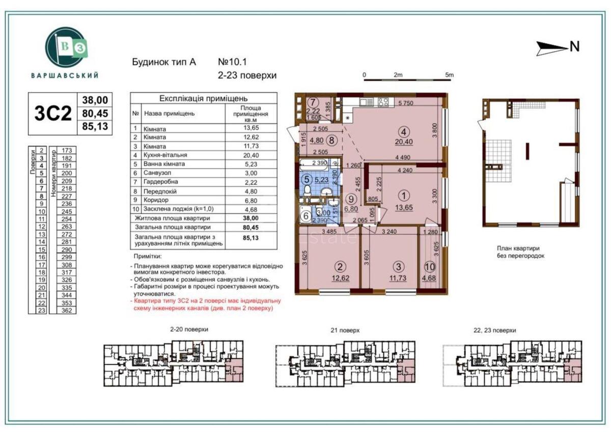
Этаж
17 Этаж
Этажность
25 этажный дом
Общая площадь
86 м2
Общее состояние
С ремонтом
Цена:
6 981 990 грн.
165 000 USD
  • AXIS Real Estate
  • AXIS Real Estate
  • AXIS Real Estate
Описание объекта

ЖК Варшавский 3, 3 комнатная квартира. Пространство 86 м² позволяет комфортно разместить семью с детьми или организовать рабочий кабинет. Функциональная планировка: три отдельные комнаты, просторная кухня-гостиная, два санузла. Отсутствие мебели - плюс: вы получаете "чистый лист" для своего дизайна или приспособления под арендный бизнес. Комфорт-класс ЖК с современными инженерными решениями: автономная котельная, генератор, охрана - удобно и безопасно.

Дополнительная информация

Похожие предложения