3k apartment pr-t Yevropeyskoho Soyuzu 1

  • Podilskyi District pr-t Yevropeyskoho Soyuzu 1
  • Code: SF-3-236-108
  • Added by: 05.11.2025
  • Add to favorites
Market type
Primary market
Street
pr-t Yevropeyskoho Soyuzu 1
Number of rooms
3
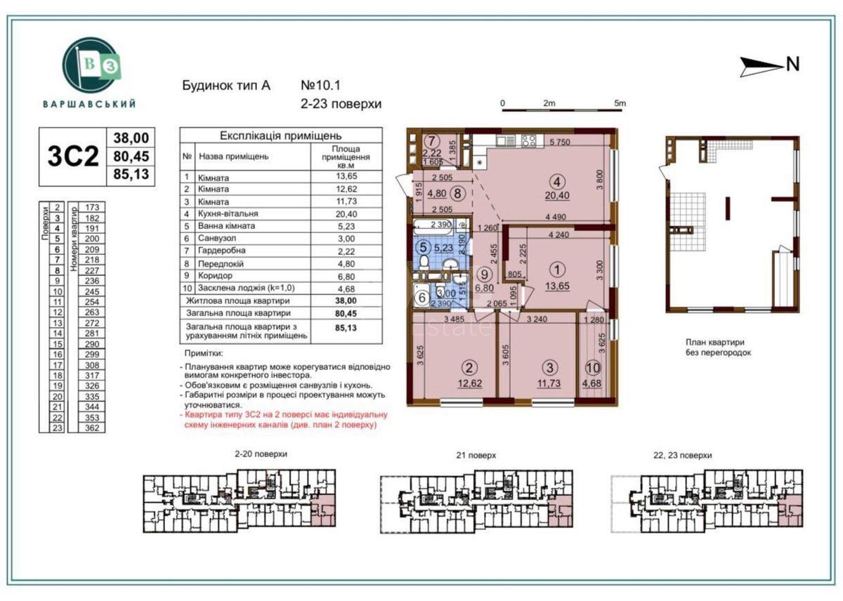
Floor
17 Floor
Number of storeys
25 storey house
Total area
86 м2
General state
With repair
Price:
6 981 990 UAH
165 000 USD
  • AXIS Real Estate
  • AXIS Real Estate
  • AXIS Real Estate
Description of the object

Varshavsky 3 residential complex, 3-room apartment. The 86 m² space allows you to comfortably accommodate a family with children or organize an office. Functional layout: three separate rooms, a spacious kitchen-living room, two bathrooms. The absence of furniture is a plus: you get a "blank sheet" for your design or adaptation for the rental business. The comfort class of the residential complex with modern engineering solutions: an autonomous boiler room, a generator, security - convenient and safe.

Additional Information

Similar offers