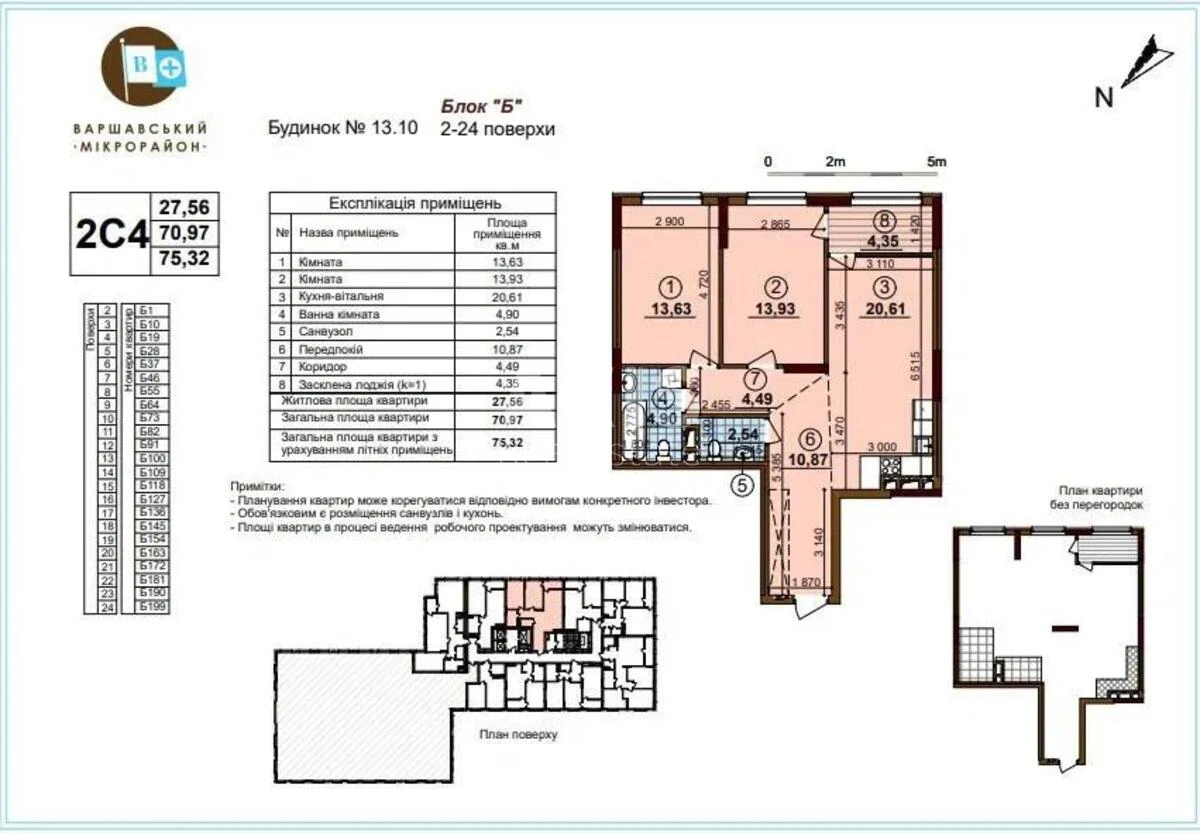
2к квартира пр-т Європейського Союзу 83

  • Подільський район вул. Івана Виговського 40/12
  • Код: SF-3-249-755
  • Добавлено: 25.02.2026
  • Додати в обране
Тип ринку
Первинний ринок
Вулиця
вул. Івана Виговського 40/12
Кількість кімнат
2
Поверх
2 Поверх
Поверховість
26 поверховий будинок
Загальна площа
75 м2
Загальний стан
Без ремонту
Ціна:
4 330 978 грн.
100 000 USD
Опис об'єкту

ЖК Варшавський Плюс, 2 кімнатна квартира. Будинок 13.10 введений в експлуатацію. 2 поверх з 24. Стан після будівельників. На підлозі лазерна стяжка, проведено канали під електропроводку, пожежна сигналізація, лічильники на холодну, гарячу воду, електроенергію, вхідні металеві, протипожежні двері, металопластикові вікна Rehau із двокамерним склопакетом. Встановлено та підключено генератор на будинок.

Схожі пропозиції