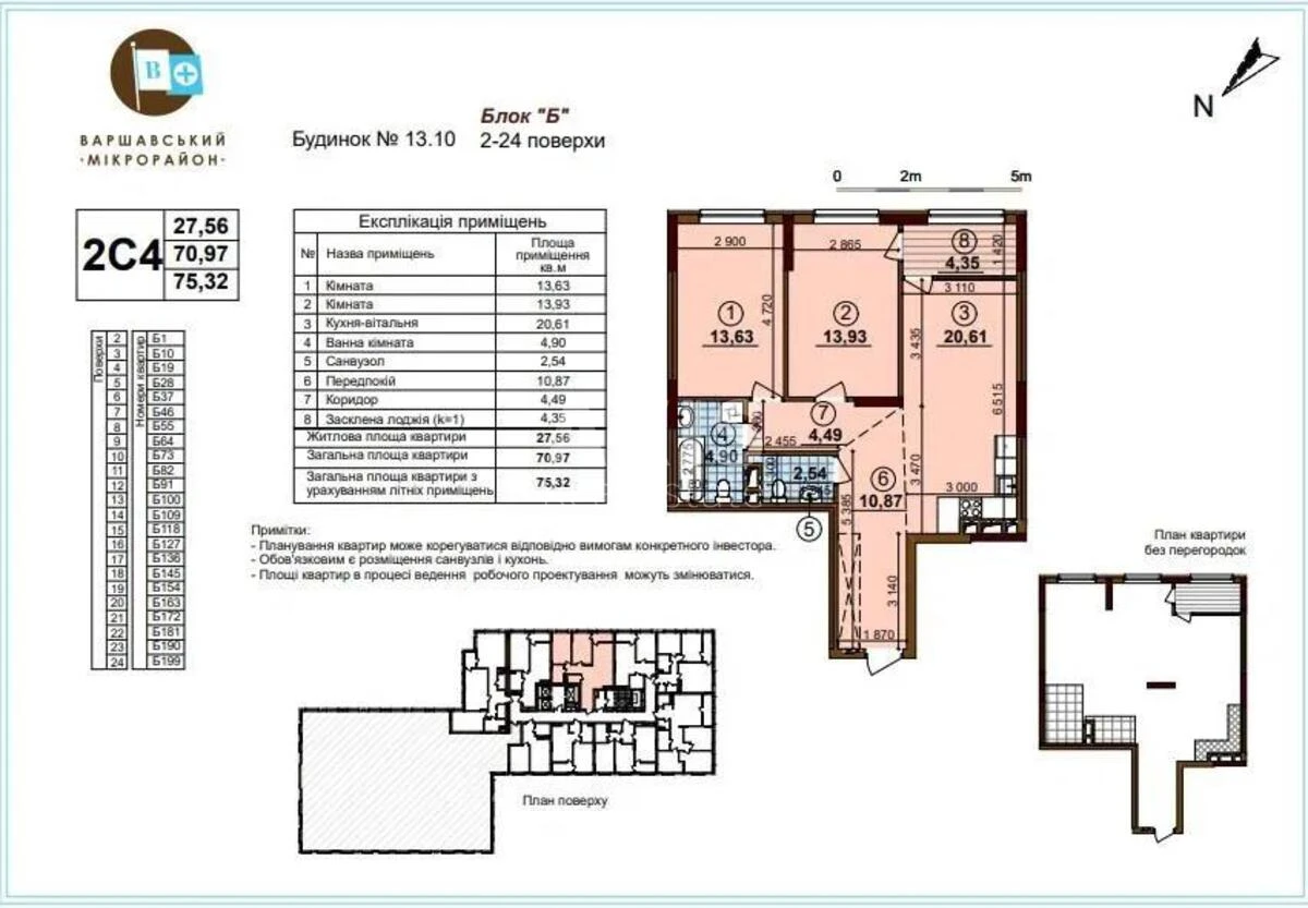
2k apartment vul. Grechka Marshala 40/12

  • Podilskyi District vul. Grechka Marshala 40/12
  • Code: SF-3-249-755
  • Added by: 29.04.2026
  • Add to favorites
Market type
Primary market
Street
vul. Grechka Marshala 40/12
Number of rooms
2
Floor
2 Floor
Number of storeys
26 storey house
Total area
75 м2
General state
Without repair
Price:
4 407 960 UAH
100 000 USD
Description of the object

Warsaw Plus residential complex, 2-room apartment. Building 13.10 commissioned. 2nd floor of 24. Condition after builders. Laser screed flooring, electrical wiring channels, fire alarm system, meters for cold and hot water and electricity, metal entrance doors, fire doors, Rehau metal-plastic windows with double glazing. A generator has been installed and connected to the building.

Similar offers