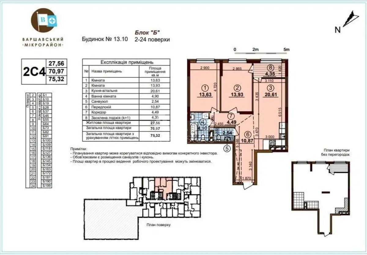
2к квартира ул. Выговского Ивана 40/12

  • Подольский район ул. Выговского Ивана 40/12
  • Код: SF-3-249-755
  • Добавлено: 29.04.2026
  • Добавить в избранное
Тип рынка
Первичный рынок
Улица
ул. Выговского Ивана 40/12
Количество комнат
2
Этаж
2 Этаж
Этажность
26 этажный дом
Общая площадь
75 м2
Общее состояние
Без ремонта
Цена:
4 407 960 грн.
100 000 USD
Описание объекта

ЖК Варшавский Плюс, 2 комнатная квартира. Дом 13.10 введен в эксплуатацию. 2 этаж из 24. Состояние после строителей. На полу лазерная стяжка, проведены каналы под электропроводку, пожарная сигнализация, счетчики на холодную, горячую воду, электроэнергию, входные металлические, противопожарные двери, металлопластиковые окна Rehau с двухкамерным стеклопакетом. Установлен и подключен генератор на дом.

Похожие предложения