2к квартира вул. Закревського Миколи 87В

  • Деснянський район вул. Закревського Миколи 87В
  • Код: SF-3-305-989
  • Добавлено: 18.04.2026
  • Додати в обране
Тип ринку
Вторинний ринок
Вулиця
вул. Закревського Миколи 87В
Кількість кімнат
2
Поверх
11 Поверх
Поверховість
16 поверховий будинок
Загальна площа
61 м2
Загальний стан
З ремонтом
Ціна:
2 302 891 грн.
52 800 USD
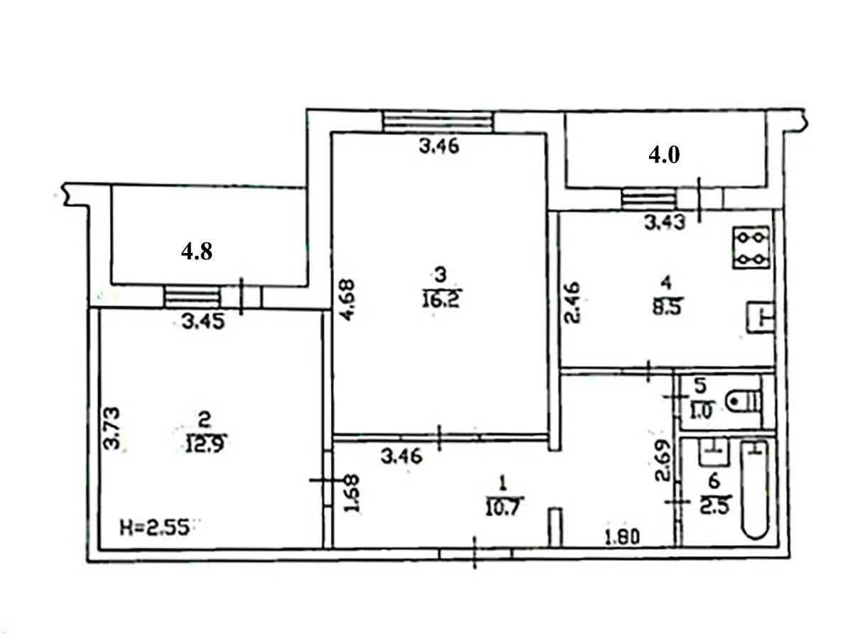
Опис об'єкту

2 кімнатна квартира. Планування: 2 окремі кімнати, кухня 8, 5 м², роздільний санвузол, 2 лоджії (4+4,8 м²) Квартира під ремонт, але стан дозволяє заїхати одразу та жити. Зручний варіант, якщо плануєте робити ремонт поступово — без термінових вкладень. Встановлені сучасні металеві вхідні двері, у вітальні — металопластикове вікно. Охайний тамбур на 3 квартири. Залишаються меблі, холодильник і пральна машина. Парадне з консьєржем, доглянута прибудинкова територія.

Схожі пропозиції