2к квартира ул. Закревского Николая 87В

  • Деснянский район ул. Закревского Николая 87В
  • Код: SF-3-305-989
  • Добавлено: 18.04.2026
  • Добавить в избранное
Тип рынка
Вторичный рынок
Улица
ул. Закревского Николая 87В
Количество комнат
2
Этаж
11 Этаж
Этажность
16 этажный дом
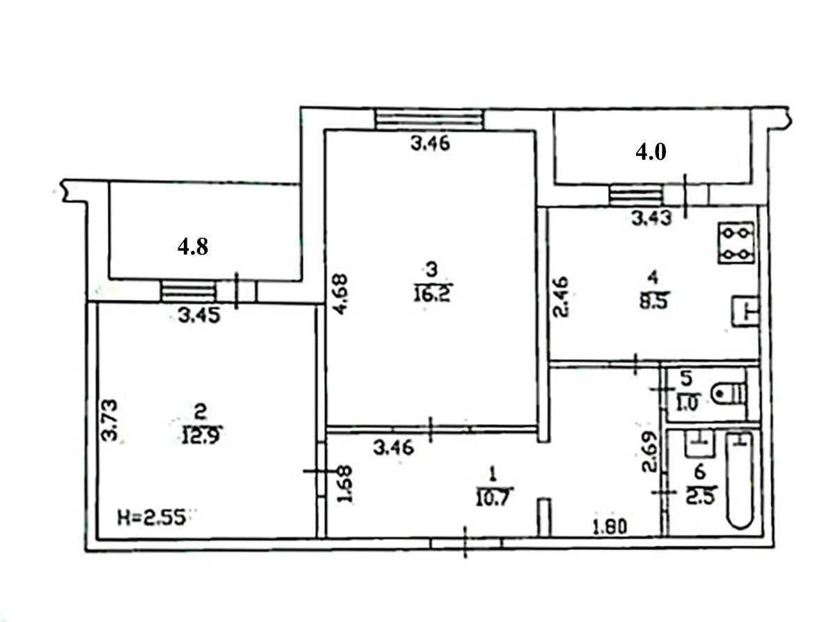
Общая площадь
61 м2
Общее состояние
С ремонтом
Цена:
2 302 891 грн.
52 800 USD
Описание объекта

2-комнатная квартира. Планировка: 2 отдельные комнаты, кухня 8,5 м², раздельный санузел, 2 лоджии (4+4,8 м²) Квартира требует ремонта, но состояние позволяет заселиться сразу и жить. Удобный вариант, если планируете делать ремонт постепенно — без срочных вложений. Установлены современные металлические входные двери, в гостиной — металлопластиковое окно. Ухоженный тамбур на 3 квартиры. Остается мебель, холодильник и стиральная машина. Парадный вход с консьержем, ухоженная придомовая территория.

Похожие предложения