2k apartment vul. Zakrevs'kogo Mykoly 87В

  • Desnyanskyi District vul. Zakrevs'kogo Mykoly 87В
  • Code: SF-3-305-989
  • Added by: 18.04.2026
  • Add to favorites
Market type
Secondary market
Street
vul. Zakrevs'kogo Mykoly 87В
Number of rooms
2
Floor
11 Floor
Number of storeys
16 storey house
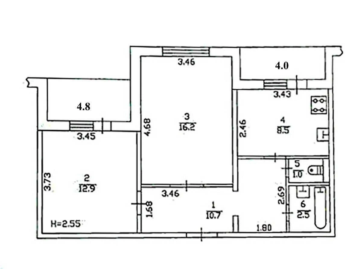
Total area
61 м2
General state
With repair
Price:
2 302 891 UAH
52 800 USD
Description of the object

2-bedroom flat. Layout: 2 separate rooms, 8.5 m² kitchen, separate bathroom, 2 balconies (4+4.8 m²) The flat is in need of renovation, but is in a condition that allows you to move in and live there straight away. A convenient option if you plan to renovate gradually — without the need for immediate investment. A modern metal front door has been fitted, and there is a PVC window in the living room. A neat entrance hall shared by three flats. Furniture, a fridge and a washing machine are included. Main entrance with a concierge, well-maintained grounds.

Similar offers