
2к квартира вул. Заболотного Академіка 148
- Додати в обране
-
Подiлитись посиланням
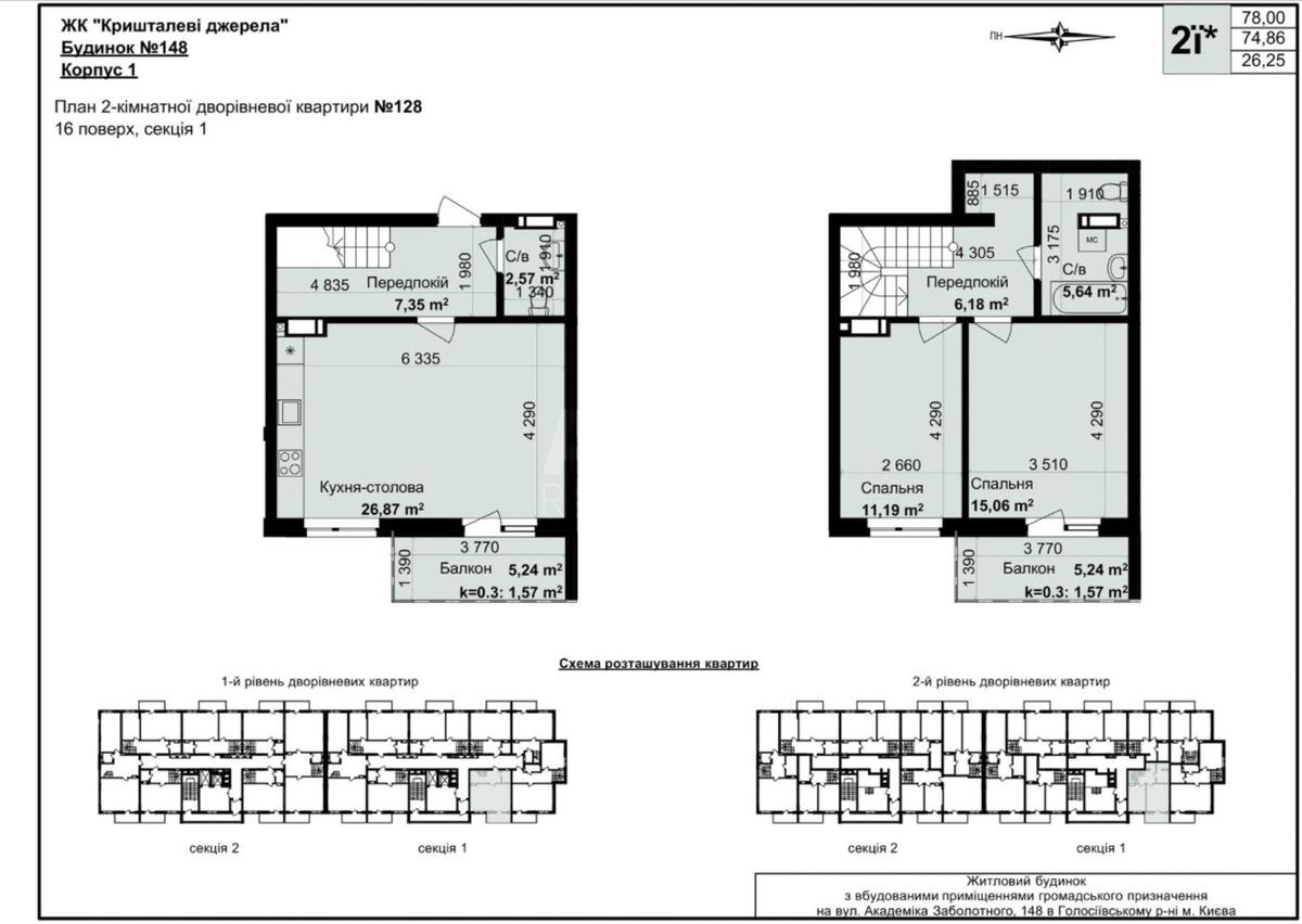
ЖК Кришталеві джерела, 2 кімнатна квартира. Після будівельників, що дозволяє реалізувати власний дизайн-проєкт. Установлені надійні вхідні двері та лічильник на тепло. Всі комунікації підключені, у квартирі передбачені сходи на металевому каркасі, є балкон і лоджія. Будинок зведений за монолітно-каркасною технологією з використанням керамічної цегли та газосилікатного блоку. Стіни утеплені мінеральною ватою, пінопластом і базальтовою ватою. Для опалення передбачено власну автономну котельню, індивідуальне та централізоване підключення. Будинок обладнаний вантажним ліфтом, сучасними системами відеоспостереження та контролю доступу, працює консьєрж, є паркувальні місця. Житловий комплекс реалізований у форматі «місто в місті» з повноцінною соціальною інфраструктурою: у межах території є магазини, банк, дитячий садок, школа, гуртки, кабінет лікаря, аптека, стоматологія, спорткомплекс, коворкінг, кафе та ресторани. Для мешканців створено умови безпеки: огороджена територія з КПП, електронно-картковою системою, шлагбаумом і відеоспостереженням. Озеленена територія включає сквер, парк, пішохідні алеї, клумби, газон, альпійську гірку та систему автополиву. Для відпочинку передбачені зони з фонтаном і Wi-Fi. Є наземна парковка з електрозаправкою, гостьова стоянка, дитячий майданчик та спортивні зони з воркаутом і тенісними столами.