
2к квартира ул. Заболотного Академика 148
- Добавить в избранное
-
Поделиться ссылкой
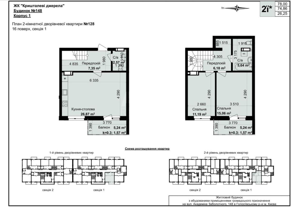
ЖК Кришталеві джерела, 2 комнатная квартира. После строителей, что позволяет реализовать собственный дизайн-проект. Установлены надежные входные двери и счетчик на тепло. Все коммуникации подключены, в квартире предусмотрена лестница на металлическом каркасе, есть балкон и лоджия. Дом возведен по монолитно-каркасной технологии с использованием керамического кирпича и газосиликатного блока. Стены утеплены минеральной ватой, пенопластом и базальтовой ватой. Для отопления предусмотрена собственная автономная котельная, индивидуальное и централизованное подключение. Дом оборудован грузовым лифтом, современными системами видеонаблюдения и контроля доступа, работает консьерж, есть парковочные места. Жилой комплекс реализован в формате "город в городе" с полноценной социальной инфраструктурой: в пределах территории есть магазины, банк, детский сад, школа, кружки, кабинет врача, аптека, стоматология, спорткомплекс, коворкинг, кафе и рестораны. Для жильцов созданы условия безопасности: огражденная территория с КПП, электронно-карточной системой, шлагбаумом и видеонаблюдением. Озелененная территория включает сквер, парк, пешеходные аллеи, клумбы, газон, альпийскую горку и систему автополива. Для отдыха предусмотрены зоны с фонтаном и Wi-Fi. Есть наземная парковка с электрозаправкой, гостевая стоянка, детская площадка и спортивные зоны с воркаутом и теннисными столами.