
2k apartment vul. Zabolotnogo Akademika 148
- Add to favorites
-
Share link
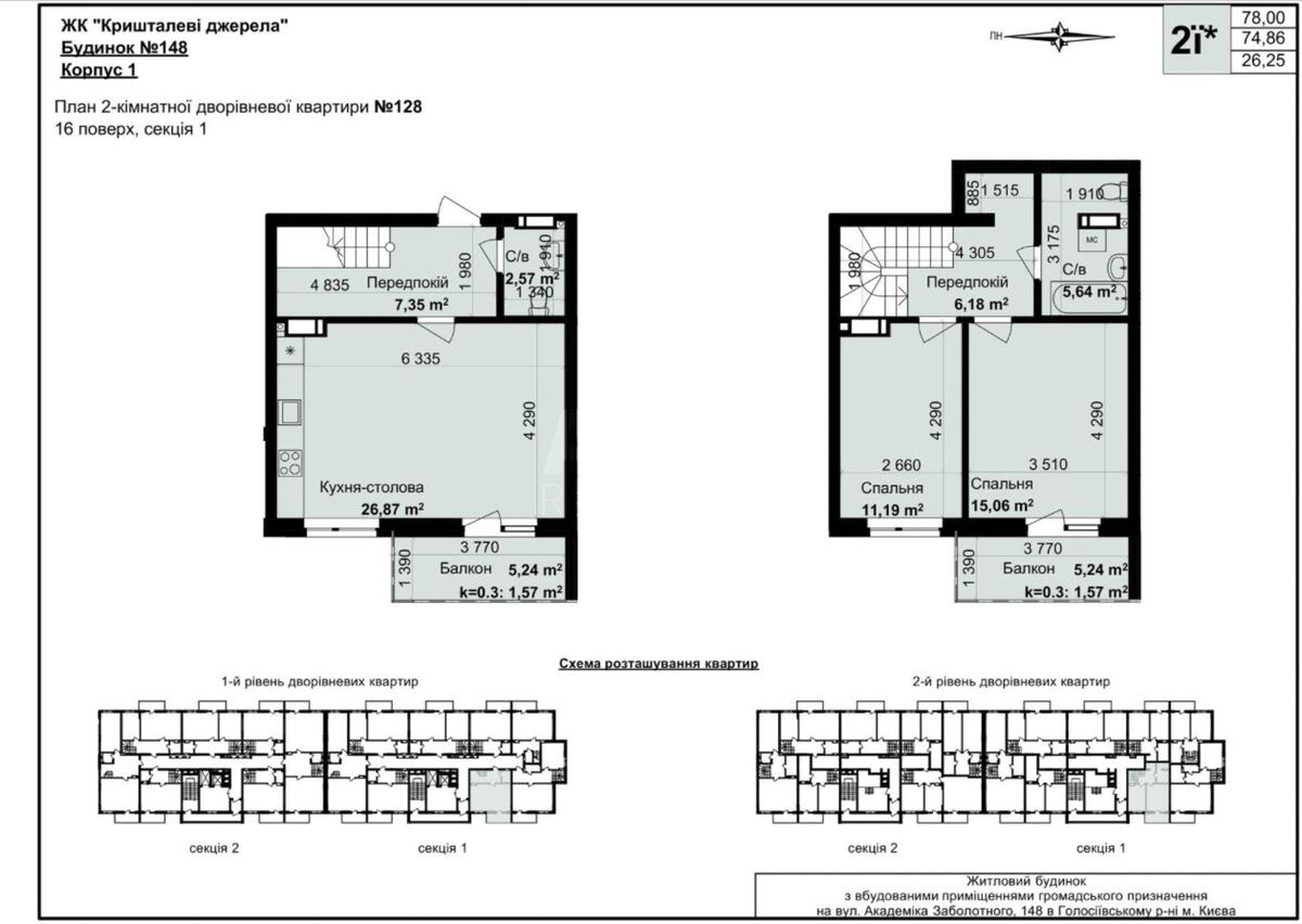
Crystal Springs residential complex, 2-room apartment. After the builders, which allows you to realize your own design project. A reliable entrance door and a heat meter are installed. All communications are connected, the apartment has a staircase on a metal frame, a balcony and a loggia. The house was built using monolithic frame technology with ceramic bricks and gas silicate block. The walls are insulated with mineral wool, foam and basalt wool. The building has its own autonomous boiler room, individual and centralized heating. The building is equipped with a freight elevator, modern video surveillance and access control systems, a concierge, and parking spaces. The residential complex is implemented in a city-within-a-city format with a full-fledged social infrastructure: there are shops, a bank, a kindergarten, a school, clubs, a doctor's office, a pharmacy, a dentist, a sports complex, coworking, cafes and restaurants within the territory. Security conditions have been created for the residents: a fenced area with a checkpoint, an electronic card system, a barrier and video surveillance. The landscaped area includes a square, a park, pedestrian alleys, flower beds, a lawn, an alpine slide and an automatic watering system. For recreation, there are areas with a fountain and Wi-Fi. There is a surface parking lot with electric charging, guest parking, a playground and sports areas with workout and tennis tables.