2к квартира вул. Віктора Некрасова 2

  • Подільський район вул. Віктора Некрасова 2
  • Код: SF-3-249-713
  • Добавлено: 25.02.2026
  • Додати в обране
Тип ринку
Первинний ринок
Вулиця
вул. Віктора Некрасова 2
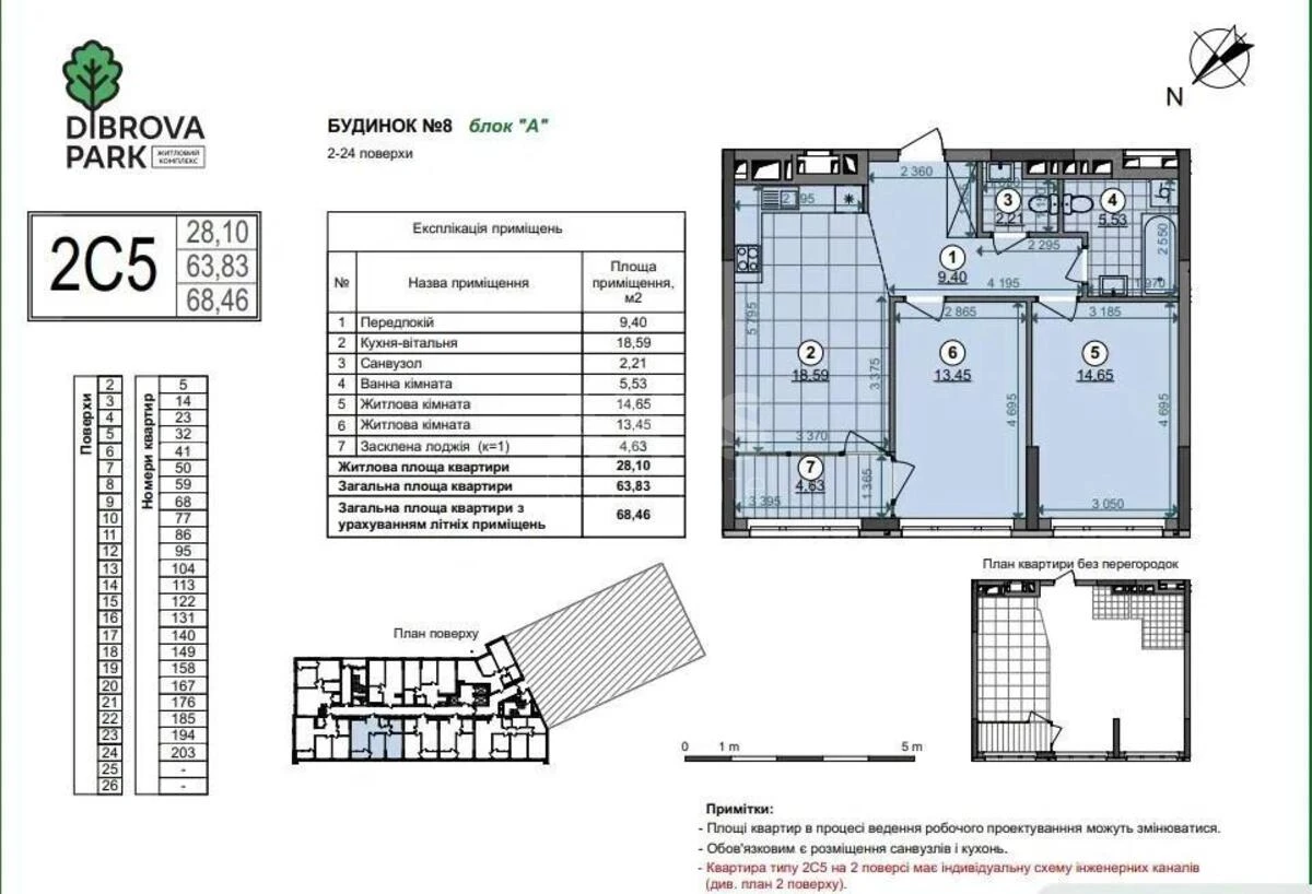
Кількість кімнат
2
Поверх
10 Поверх
Поверховість
26 поверховий будинок
Загальна площа
69 м2
Загальний стан
Без ремонту
Ціна:
3 681 331 грн.
85 000 USD
Опис об'єкту

ЖК Dibrova Park, 2 кімнатна квартира. Стан після будівельників. На підлозі лазерна стяжка, проведено електрика, пожежна сигналізація, лічильники на холодну, гарячу воду, електроенергію, вхідні металеві, протипожежні двері, металопластикові вікна Rehau із двокамерним склопакетом. Прямо біля ЖК активно будується станція метро «Мостицька». Декілька зупинок — і ви у центрі Києва. Поруч з ЖК працюють школа №68, №45, міжнародний арт-ліцей імені Сальвадора Далі, державний дитячий садок №482» та декілька приватних. На території активно розвивається комерція. Вже є магазинчики, кафе та спортзал. Заплановано 3 паркінги, 2 торгові центри.

Схожі пропозиції