2к квартира ул. Виктора Некрасова 2

  • Подольский район ул. Виктора Некрасова 2
  • Код: SF-3-249-713
  • Добавлено: 25.02.2026
  • Добавить в избранное
Тип рынка
Первичный рынок
Улица
ул. Виктора Некрасова 2
Количество комнат
2
Этаж
10 Этаж
Этажность
26 этажный дом
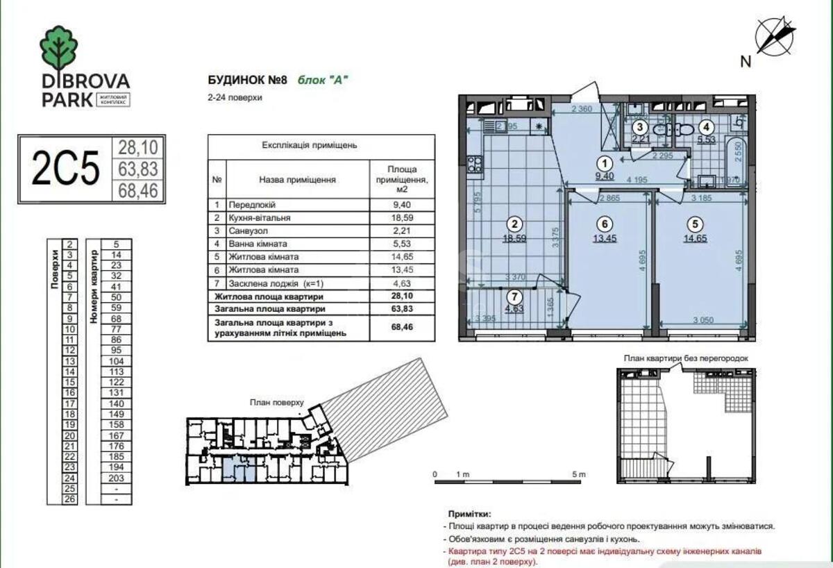
Общая площадь
69 м2
Общее состояние
Без ремонта
Цена:
3 681 331 грн.
85 000 USD
Описание объекта

ЖК Dibrova Park, 2 комнатная квартира. Состояние после строителей. На полу лазерная стяжка, проведено электричество, пожарная сигнализация, счетчики на холодную, горячую воду, электроэнергию, входные металлические, противопожарные двери, металлопластиковые окна Rehau с двухкамерным стеклопакетом. Прямо возле ЖК активно строится станция метро "Мостицкая". Несколько остановок - и вы в центре Киева. Рядом с ЖК работают школа №68, №45, международный арт-лицей имени Сальвадора Дали, государственный детский сад №482 "и несколько частных. На территории активно развивается коммерция. Уже есть магазинчики, кафе и спортзал. Запланировано 3 паркинга, 2 торговых центра.

Похожие предложения