2k apartment vul. Viktora Nekrasova 2

  • Podilskyi District vul. Viktora Nekrasova 2
  • Code: SF-3-249-713
  • Added by: 25.02.2026
  • Add to favorites
Market type
Primary market
Street
vul. Viktora Nekrasova 2
Number of rooms
2
Floor
10 Floor
Number of storeys
26 storey house
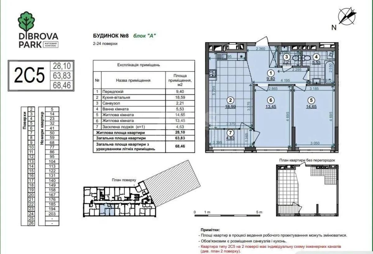
Total area
69 м2
General state
Without repair
Price:
3 681 331 UAH
85 000 USD
Description of the object

RC Dibrova Park, 2 bedroom apartment. Condition after the builders. Laser screed on the floor, electricity, fire alarm, meters for cold, hot water, electricity, metal entrance doors, fire doors, Rehau plastic windows with double-glazed windows. The Mostytska metro station is under active construction right next to the residential complex. A few stops and you are in the center of Kyiv. Schools No. 68, No. 45, Salvador Dali International Art Lyceum, public kindergarten No. 482 and several private ones are located near the residential complex. Commerce is actively developing on the territory. There are already shops, cafes and a gym. 3 parking lots and 2 shopping centers are planned.

Similar offers