2к квартира вул. Полупанова 16

  • Оболонський район вул. Полупанова 16
  • Код: SF-3-293-546
  • Добавлено: 19.03.2026
  • Додати в обране
Тип ринку
Вторинний ринок
Вулиця
вул. Полупанова 16
Кількість кімнат
2
Поверх
4 Поверх
Поверховість
23 поверховий будинок
Загальна площа
65 м2
Загальний стан
З ремонтом
Ціна:
5 804 912 грн.
132 000 USD
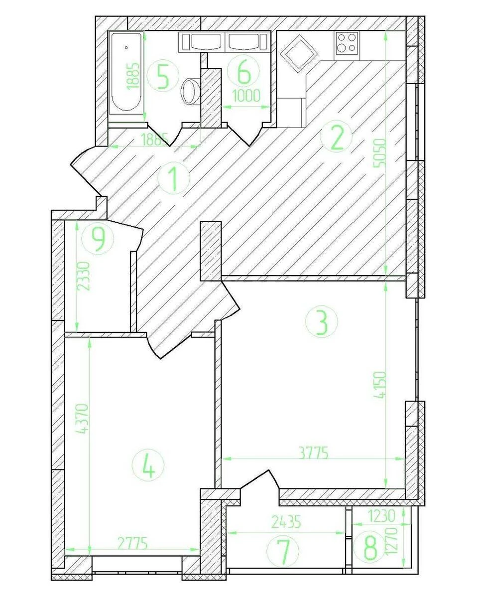
Опис об'єкту

ЖК Вишиванка, 2 кімнатна квартира. Простора квартира з роздільним плануванням та якісним євроремонтом, повністю готова для комфортного проживання. Кімнати світлі та зручні, з панорамними вікнами, які наповнюють простір природним світлом. У квартирі є балкон і лоджія, а також два санвузли, один із яких обладнаний ванною. Кухня облаштована меблями, а для додаткового комфорту встановлено систему підігріву підлоги та кондиціонер. Також передбачені гардеробна та господарське приміщення (комора), що дозволяє зручно організувати зберігання речей. Важливою перевагою є автономність: у квартирі встановлена станція безперебійного електроживлення потужністю 3 кВт, тому електроенергія доступна навіть під час відключень. Вода також подається стабільно, що забезпечує комфорт у будь-який час. Будинок збудований за монолітно-каркасною технологією з використанням керамічної цегли. Стіни утеплені мінеральною ватою, а фасад оздоблений мінеральною штукатуркою, що забезпечує хорошу теплоізоляцію та довговічність будівлі. У будинку працюють пасажирський і вантажний ліфти, встановлена пожежна сигналізація. Територія закрита та перебуває під цілодобовою охороною. Для мешканців і гостей передбачені паркувальні місця, а також працює автономний електрогенератор, що підтримує роботу основних систем будинку. Будинок має централізоване опалення та водопостачання. Будинок розташований у зручному районі з гарною транспортною доступністю. Всього приблизно за 100 метрів знаходиться зупинка трамвая у напрямку до Поділ, що дозволяє швидко дістатися до центру міста. Поруч є магазини, сервіси та інші об’єкти міської інфраструктури. Зручна транспортна розв’язка та швидкий виїзд на основні дороги міста роблять цю локацію особливо комфортною для щоденного життя.

Схожі пропозиції