2к квартира ул. Приорская 16

  • Оболонский район ул. Приорская 16
  • Код: SF-3-293-546
  • Добавлено: 19.03.2026
  • Добавить в избранное
Тип рынка
Вторичный рынок
Улица
ул. Приорская 16
Количество комнат
2
Этаж
4 Этаж
Этажность
23 этажный дом
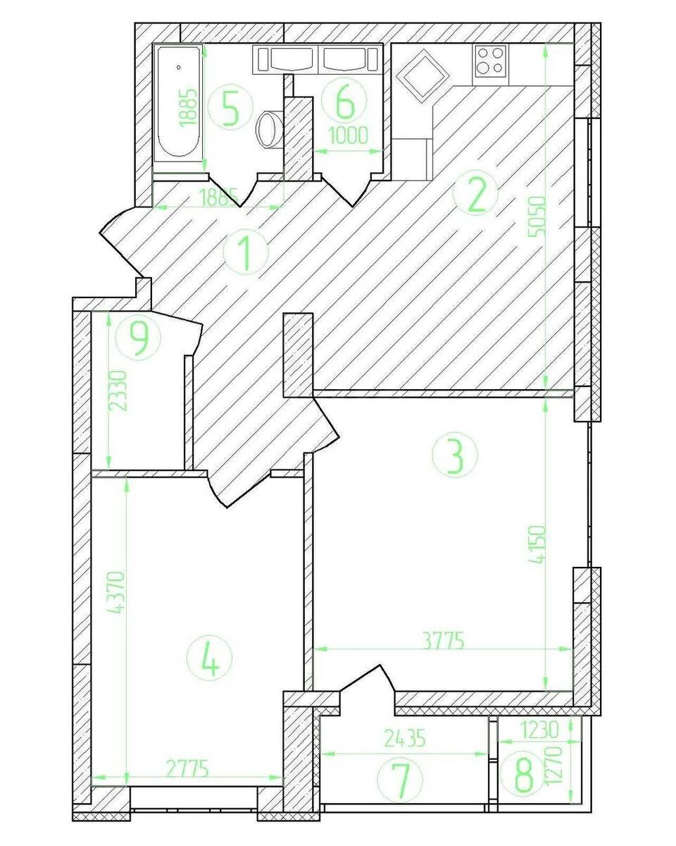
Общая площадь
65 м2
Общее состояние
С ремонтом
Цена:
5 804 912 грн.
132 000 USD
Описание объекта

ЖК «Вышиванка», 2-комнатная квартира. Просторная квартира с раздельной планировкой и качественным евроремонтом, полностью готовая к комфортному проживанию. Комнаты светлые и удобные, с панорамными окнами, которые наполняют пространство естественным светом. В квартире есть балкон и лоджия, а также два санузла, один из которых оборудован ванной. Кухня обставлена мебелью, а для дополнительного комфорта установлены система подогрева пола и кондиционер. Также предусмотрены гардеробная и хозяйственное помещение (кладовая), что позволяет удобно организовать хранение вещей. Важным преимуществом является автономность: в квартире установлена станция бесперебойного электропитания мощностью 3 кВт, поэтому электроэнергия доступна даже во время отключений. Вода также подается стабильно, что обеспечивает комфорт в любое время. Дом построен по монолитно-каркасной технологии с использованием керамического кирпича. Стены утеплены минеральной ватой, а фасад отделан минеральной штукатуркой, что обеспечивает хорошую теплоизоляцию и долговечность здания. В доме работают пассажирский и грузовой лифты, установлена пожарная сигнализация. Территория закрыта и находится под круглосуточной охраной. Для жильцов и гостей предусмотрены парковочные места, а также работает автономный электрогенератор, поддерживающий работу основных систем дома. Дом имеет централизованное отопление и водоснабжение. Дом расположен в удобном районе с хорошей транспортной доступностью. Всего примерно в 100 метрах находится трамвайная остановка в направлении Подола, что позволяет быстро добраться до центра города. Рядом есть магазины, сервисы и другие объекты городской инфраструктуры. Удобная транспортная развязка и быстрый выезд на основные дороги города делают эту локацию особенно комфортной для повседневной жизни.

Похожие предложения