2k apartment vul. Polupanova 16

  • Obolonskyi District vul. Polupanova 16
  • Code: SF-3-293-546
  • Added by: 19.03.2026
  • Add to favorites
Market type
Secondary market
Street
vul. Polupanova 16
Number of rooms
2
Floor
4 Floor
Number of storeys
23 storey house
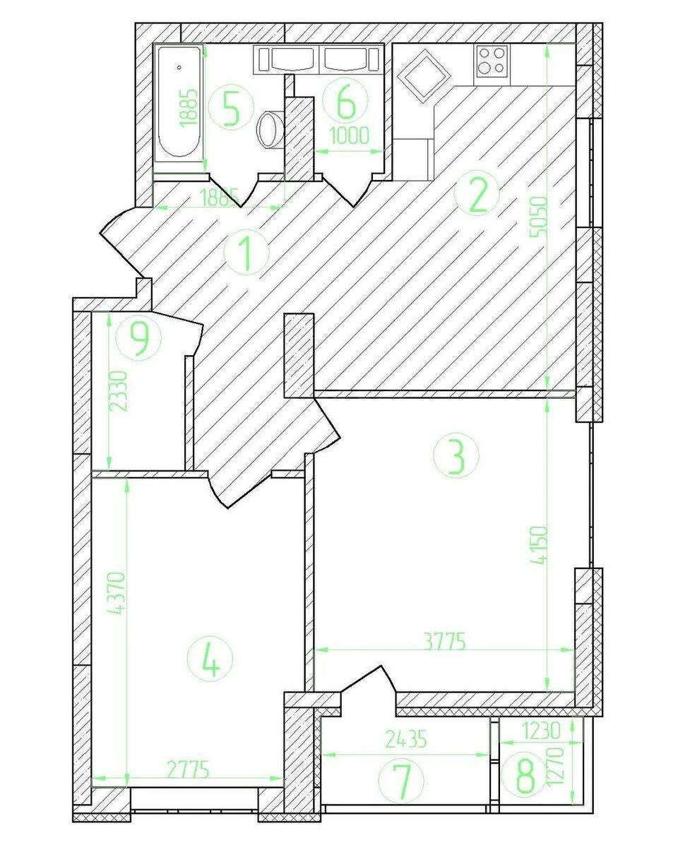
Total area
65 м2
General state
With repair
Price:
5 804 912 UAH
132 000 USD
Description of the object

Vyshyvanka residential complex, 2-bedroom flat. A spacious flat with a separate layout and high-quality refurbishment, fully ready for comfortable living. The rooms are bright and comfortable, with panoramic windows that fill the space with natural light. The flat features a balcony and a loggia, as well as two bathrooms, one of which is fitted with a bath. The kitchen is fully fitted, and for added comfort, underfloor heating and air conditioning have been installed. There is also a walk-in wardrobe and a utility room (storage room), allowing for convenient organisation of belongings. A key advantage is its self-sufficiency: the flat is fitted with a 3 kW uninterruptible power supply unit, ensuring electricity is available even during power cuts. The water supply is also reliable, ensuring comfort at all times. The building is constructed using monolithic frame technology with ceramic bricks. The walls are insulated with mineral wool, and the façade is finished with mineral plaster, ensuring good thermal insulation and the building’s durability. The building has passenger and goods lifts, and a fire alarm system is installed. The grounds are gated and under 24-hour security. Parking spaces are provided for residents and guests, and there is an autonomous generator to maintain the building’s main systems. The building has central heating and water supply. The building is situated in a convenient area with good transport links. A tram stop heading towards Podil is just 100 metres away, allowing for a quick journey to the city centre. Shops, services and other urban amenities are nearby. Convenient transport links and quick access to the city’s main roads make this location particularly comfortable for everyday living.

Similar offers