Продаж

Усі фото (3)
2к квартира вул. Михайла Максимовича 32
- Додати в обране
-
Подiлитись посиланням
Тип ринку
Первинний ринок
Вулиця
вул. Михайла Максимовича 32
Кількість кімнат
2
Поверх
16 Поверх
Поверховість
23 поверховий будинок
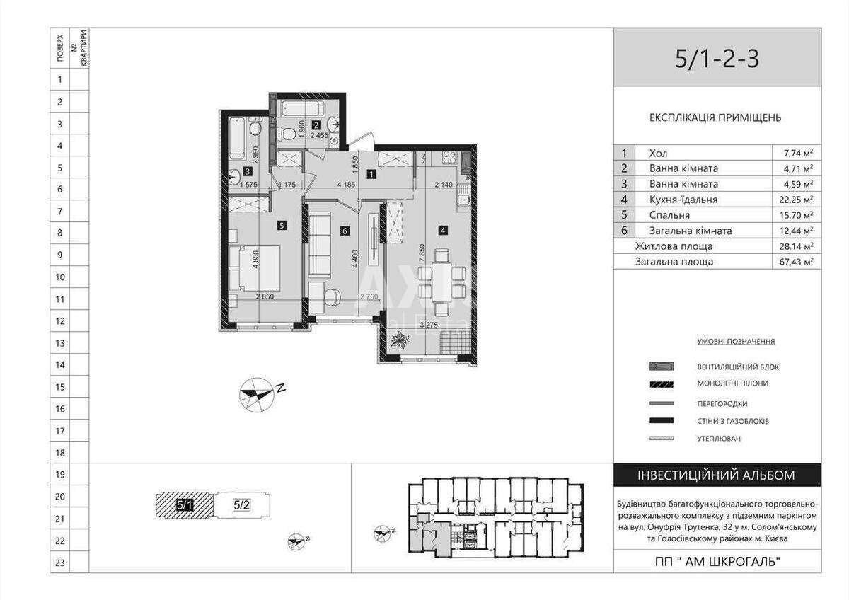
Загальна площа
67 м2
Загальний стан
Без ремонту
Ціна:
4 044 380 грн.
97 140 USD
Опис об'єкту
ЖК Liko-Grad Perfect Town, 2 кімнатна квартира. Площа - 67,43 м². Вікна у двір. Після будівельників. Хороше планування. Розвинена інфраструктура. Гарна локація.
Додаткова інформація