Sell

All photos (3)
2k apartment vul. Myhajla Maksymovycha 32
- Add to favorites
-
Share link
Market type
Primary market
Street
vul. Myhajla Maksymovycha 32
Number of rooms
2
Floor
16 Floor
Number of storeys
23 storey house
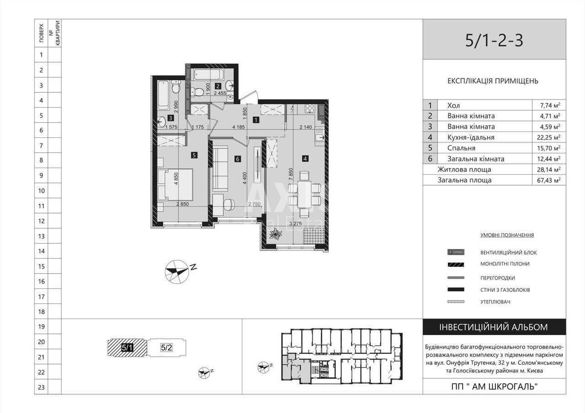
Total area
67 м2
General state
Without repair
Price:
4 044 380 UAH
97 140 USD
Description of the object
Liko-Grad Perfect Town residential complex, 2-room apartment. The area is 67.43 m². Windows to the courtyard. After the builders. Good planning. Developed infrastructure. Good location.
Additional Information